Nógrád megye, Buják


 

Hivatkozási szám: 3194374

Ingatlan adatai

Irányár: 44 000 000 Ft
Típus: ház
Kategória: eladó
Alapterület: 170 m2
Fűtés: egyéb
Állapota: -
Szobák száma: 5
Építés éve: 1987
Szintek száma: -

Részletes leírás

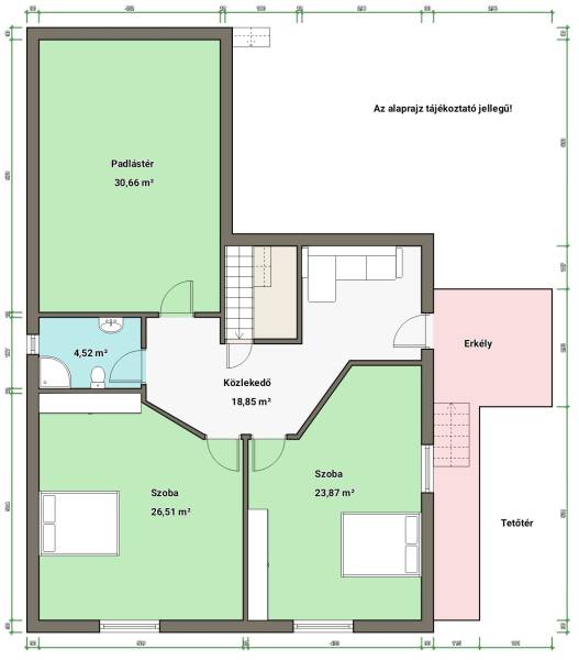
ÁRCSÖKKENÉS!!!Ha családosként egy igazán különleges otthont keresel, ami nemcsak kényelmet, hanem nyugalmat is nyújt a mindennapokban, akkor figyelmedbe ajánlom ezt a Buják szívében található, használt lakóingatlant. Az ingatlan 170 nm-es alapterületével és 1696 nm-es telekméretével bőséges teret biztosít a családi élethez. A házban 5 tágas szoba található, így bőven van hely a gyerekeknek, vendégeknek, vagy akár egy otthoni irodának is. Teljesen FELÚJÍTOTT 2 fürdőszoba gondoskodik arról, hogy soha ne kelljen várni a reggeli készülődésre. A világos, napfényes helyiségek mellett a cserépkályha is hozzájárul a meghitt hangulathoz, különösen a hűvösebb hónapokban. Az emeleti tágas terasz panorámás kilátást nyújt a falura és a NAPLEMENTÉRE, így egy kis pihenésre a nap végén tökéletes helyszín. A ház JÓ ÁLLAPOTÚ, gáz- és vegyestüzelésű kazánnal fűtött, légkondicionált, így a kényelmes élet minden adottságával rendelkezik. Parkolóhelyed is van, hiszen egy teremgarázsban egy autót biztonságosan tárolhatsz. Az udvarban pedig egy EGYEDI BOROSPINCE biztosít lehetőséget a baráti összejövetelekre.A csendes környék, ahol az ingatlan található, ideális választás családok számára. Buják nemcsak a természet közelségét kínálja, hanem kiváló közlekedési lehetőségeket is. A település jól megközelíthető autóval, és a tömegközlekedés is rendelkezésre áll, így könnyedén elérheted a közeli városokat, mint például Salgótarjánt vagy Pásztót. Új játszótér, óvoda és iskola a közelben tatlálható.Ez a tehermentes ingatlan nemcsak egy új otthon, hanem egy lehetőség is, hogy a családod számára a legjobbat biztosítsd. Ha bármilyen kérdésed van, vagy szeretnéd megtekinteni az ingatlant, bátran keress meg! FALUSI CSOK és kedvezményes hitelügyintézésben díjmentesen segítünk!

További adatok

Telekterület: 1 696 m2
Kert mérete: 1 696 m2
Erkély mérete: 22 m2
Felszereltség: -
Parkolás: -
Kilátás: utcai
Egyéb extrák:  
-

Hirdető adatai

Hirdető neve: Ingatlanmentor powered by Rock Home
Kapcsolattartó: Horváth Tibor
Hirdető telefonszáma: +36 70 467 6871
Honlap: -

Üzenetet küldhet a hirdetőnek:
Az Ön neve:
Az Ön e-mail címe:
Üzenet: