Budapest, III.kerület


 

Hivatkozási szám: 3194366

Ingatlan adatai

Irányár: 113 000 000 Ft
Típus: ház
Kategória: eladó
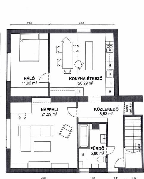
Alapterület: 74 m2
Fűtés: gáz (cirko)
Állapota: felújított
Szobák száma: 3
Építés éve: -
Szintek száma: -

Részletes leírás

200 nm kert, privát, saját használatú, nincs átjárás! Fűtése általányban egész évben 8000ft/hó!Irányár 113 M Ft!Eladásra kínálunk Budapest III. kerületében, Csillaghegyen egy csendes, kertvárosias környezetben található házrészt.Az épület rendezett, nyugodt lakóközösséggel, 4 lakással ideális választás azok számára, akik zöldövezeti környezetben keresnek jól élhető otthont.A 74 négyzetméteres, felújított otthon jelenleg kétszobás kialakítású, azonban háromszobássá alakítható amerikai konyhás nappali és két hálószobás elrendezésre.Az ingatlan felújításon esett át, amely érintette a nyílászárókat, a burkolatokat, a konyhát és a fürdőszobát is.Az ingatlan dél-keleti fekvésű, ennek köszönhetően világos, napfényes terei egész nap kellemes atmoszférát biztosítanak. A fűtést és a meleg vizet kombicirkó szolgáltatja, radiátoros hőleadással minden helyiségben, továbbá klímaberendezés is rendelkezésre áll.Az ingatlanhoz tartozik egy megközelítőleg 200 négyzetméteres, privát használatú kert, amely kiválóan alkalmas pihenésre, kikapcsolódásra vagy akár családi programokra. Emellett egy 4 négyzetméteres alsó terasz is a rendelkezésre áll. Parkolás az udvaron belül két autó számára biztosított, az utcán pedig szintén könnyen megoldható. Az ingatlan nem ártérben helyezkedik el.A környék infrastruktúrája kiváló, a közlekedés gyors és jól szervezett, miközben a környezet megőrzi csendes, kertvárosias jellegét. A lakás ideális választás lehet családok, párok vagy akár befektetők számára

További adatok

Telekterület: 200 m2
Kert mérete: 200 m2
Erkély mérete: 5 m2
Felszereltség: -
Parkolás: -
Kilátás: -
Egyéb extrák:  
-

Hirdető adatai

Hirdető neve: Horland Ingatlan
Kapcsolattartó: Hortobágyiné Magdi
Hirdető telefonszáma: +36204777632
Honlap: -

Üzenetet küldhet a hirdetőnek:
Az Ön neve:
Az Ön e-mail címe:
Üzenet: