Pest megye, Dömsöd


ÚJ ÉPÍTÉSŰ, TÁROLÓ KAPCSOLATOS IKERHÁZ 

Hivatkozási szám: 3193019

Ingatlan adatai

Irányár: 55 000 000 Ft
Típus: ház
Kategória: eladó
Alapterület: 80 m2
Fűtés: -
Állapota: új
Szobák száma: 4
Építés éve: 2026
Szintek száma: -

Részletes leírás

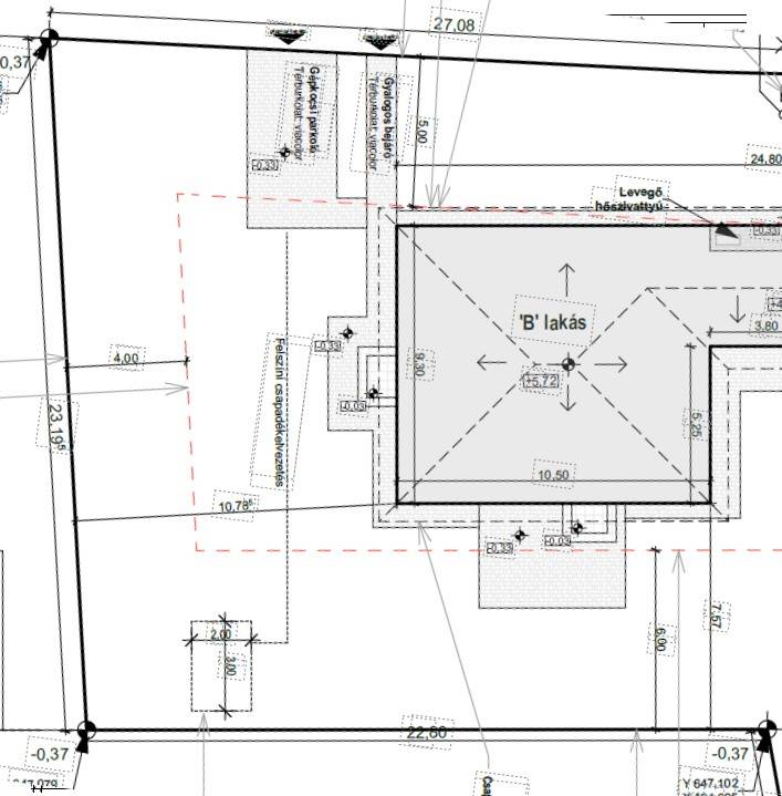
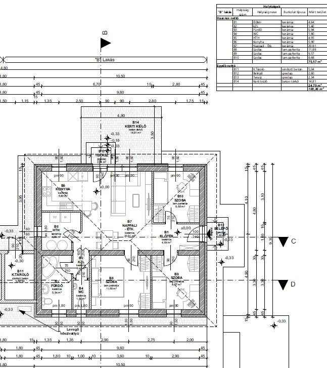
3%-OS OTTHON START HITEL, CSOK+, ILLETÉKMENTESSÉG, ZÖLD-HITEL, ENERGIATAKARÉKOS HÁZ!!! BUSZMEGÁLLÓ GYALOGOSAN 1 PERC SÉTÁRA!VASÚTI KÖZLEKEDÉS BUDAPESTRE A KELETI PÁLYAUDVARRA!!!Megvételre kínálok Dömsöd KÖZPONTJÁHOZ KÖZEL, 1059nm-es telekre épülő, ÚJ, egyszintes, NAPELEMMEL KOMBINÁLHATÓ, HŐSZIVATTYÚS, padlófűtéses, TÁROLÓ KAPCSOLATOS ikerházat!!Saját elkerített telek, külön albetét házanként.MÁR CSAK A B-LAKÁS ELÉRHETŐB LAKÁS Nettó 75,57 nm + Tároló 5nm Terasz: 17,15nm Telek: 542,93 nm-Előtér 4,64nm-Amerikaikonyhás-Nappali 26,71nm-szoba 11,88nm-szoba 9,57nm-szoba 8,68nm-fürdő 5,94nm-wc 1.8nm-Háztartási h.4,95 nm -közlekedő 1,4nmPár műszaki adat 2026-év szabványnak megfelelően:-Leier 30-as téglából épül, tégla válaszfalakkal,-külső szigetelése Dryvit rendszerű szigetelés-fa tetőszerkezet,-fa födém,-függesztett gipszkarton mennyezet,-Bramac cserépfedés-3rétegű, műanyag hőszigetelt nyílászárók -A belső burkolatokat a vevő választja.Bölcsöde, óvoda, iskola, Kultúr és Egészség-Ház, bevásárlási lehetőségek!!Cégünk INGYENES, iroda és bank-független Hitel ügyintézéssel is rendelkezésére áll, nem csak nálunk vásárolt ingatlanokra!!Kérdés és-vagy időpont egyeztetés miatt hívjon bátran akár hétvégén is.Amennyiben nem tudom felvenni visszahívom.

További adatok

Telekterület: 542 m2
Kert mérete: 542 m2
Erkély mérete: 17 m2
Felszereltség: -
Parkolás: -
Kilátás: -
Egyéb extrák:  
-

Hirdető adatai

Hirdető neve: Dream Credit Kft.
Kapcsolattartó: Zsuzsanna Hegedűs
Hirdető telefonszáma: +36707798880
Honlap: -

Üzenetet küldhet a hirdetőnek:
Az Ön neve:
Az Ön e-mail címe:
Üzenet: