Pest megye, Dömsöd


Dömsödön új 80nm-es ikerházak 653nm telekkel 

Hivatkozási szám: 3193017

Ingatlan adatai

Irányár: 58 000 000 Ft
Típus: ház
Kategória: eladó
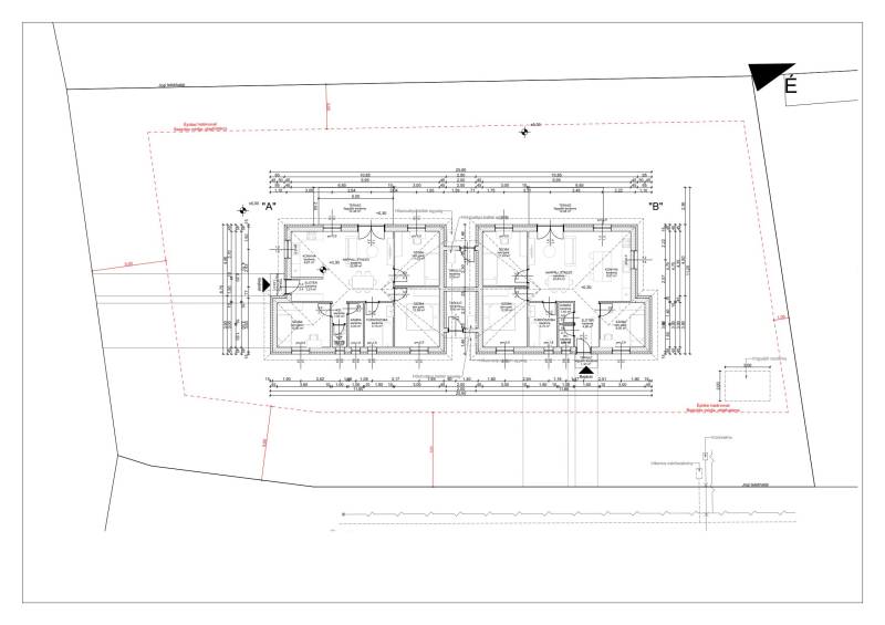
Alapterület: 83 m2
Fűtés: -
Állapota: új
Szobák száma: 4
Építés éve: -
Szintek száma: -

Részletes leírás

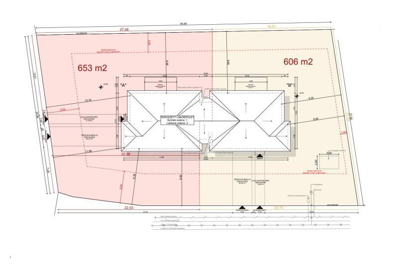
3%-OS OTTHON START HITEL, CSOK+, ILLETÉKMENTESSÉG, ZÖLD-HITEL, ENERGIATAKARÉKOS HÁZ!!! VASÚTI KÖZLEKEDÉS BUDAPESTRE A KELETI PÁLYAUDVARRA!!!Megvételre kínálok Dömsödön két utcáról nyíló, 1259nm-es telekre épülő, ÚJ, egyszintes, NAPELEMMEL KOMBINÁLHATÓ, HŐSZIVATTYÚS, padlófűtéses, TÁROLÓ KAPCSOLATOS ikerházat!!Saját elkerített telek, külön albetét házanként.A LAKÁS Nettó 77,5 nm+ Tároló 5nm Terasz: 14 m2 Kert: 653nm-Előtér 3,23nm-Amerikaikonyhás-Nappali 28,06nm-szoba 12.08nm-szoba 11,03nm -szoba 10,8nm-fürdő 5,7nm-wc 1.4nm-kamra 1,5nmB LAKÁS Nettó 78 nm + Tároló 5nm Terasz: 14 m2 Kert: 606 nm-Előtér 4,96nm-Amerikaikonyhás-Nappali 32,2nm-szoba 12.08nm-szoba 11,03nm -szoba 9nm-fürdő 5,7nm-wc 1.4nm-kamra 1,5nmPár műszaki adat 2026-év szabványnak megfelelően:-Leier 30-as téglából épül, tégla válaszfalakkal,-külső szigetelése Dryvit rendszerű szigetelés-fa tetőszerkezet,-fa födém,-függesztett gipszkarton mennyezet,-Bramac cserépfedés-3rétegű, műanyag hőszigetelt nyílászárók -A belső burkolatokat a vevő választja.Bölcsöde, óvoda, iskola, Kultúr és Egészség-Ház, bevásárlási lehetőségek!!Cégünk INGYENES, iroda és bank-független Hitel ügyintézéssel is rendelkezésére áll, nem csak nálunk vásárolt ingatlanokra!!Kérdés és-vagy időpont egyeztetés miatt hívjon bátran akár hétvégén is.Amennyiben nem tudom felvenni visszahívom.

További adatok

Telekterület: 653 m2
Kert mérete: 653 m2
Erkély mérete: 14 m2
Felszereltség: -
Parkolás: -
Kilátás: -
Egyéb extrák:  
-

Hirdető adatai

Hirdető neve: Dream Credit Kft.
Kapcsolattartó: Zsuzsanna Hegedűs
Hirdető telefonszáma: +36707798880
Honlap: -

Üzenetet küldhet a hirdetőnek:
Az Ön neve:
Az Ön e-mail címe:
Üzenet: