Győr-Moson-Sopron megye, Vámosszabadi


 

Hivatkozási szám: 3192502

Ingatlan adatai

Irányár: 119 500 000 Ft
Típus: ház
Kategória: eladó
Alapterület: 121 m2
Fűtés: gáz (cirko)
Állapota: -
Szobák száma: 4
Építés éve: 2002
Szintek száma: -

Részletes leírás

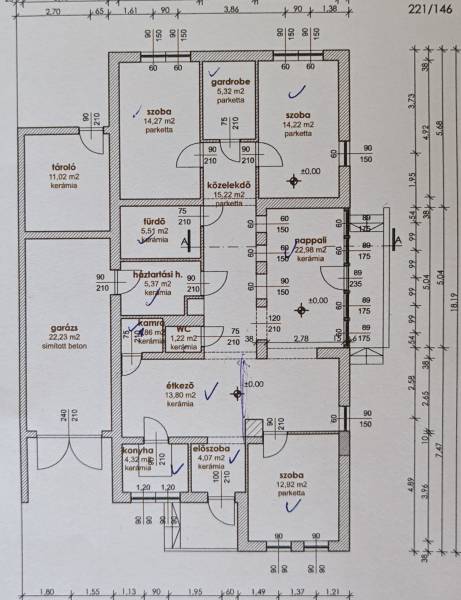
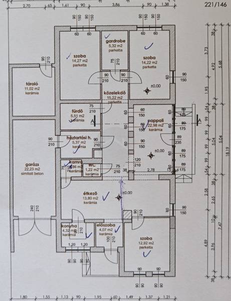
Fedezd fel ezt a kiváló állapotú, használt lakóingatlant Vámosszabadiban, Győr-Moson-Sopron megyében!Az ingatlan 2002-ben épült 38-as Porotherm téglából, nettó 121 négyzetméteres alapterülettel mely egy tágas, 1233 négyzetméteres telken helyezkedik el, amely ideális választás lehet családok számára, vagy akár befektetési céllal is.A házban nappali + három szoba található, így bőven van hely a családi élethez, valamint a vendégek fogadásához, az ingatlan további helyiségei: konyha, étkező, kamra, előszoba, közlekedő, gardrób, háztartási helyiség, fürdőszoba+wc és egy külön mellékhelyiség.A terasz mérete 10 négyzetméter, amely tökéletes helyszín lehet a reggeli kávézáshoz vagy a nyári baráti összejövetelekhez.A kert rendezett, mely automata öntözőrendszerrel van ellátva, így a zöld területek karbantartása gyerekjáték.Ezen kívül a kerti tároló praktikus megoldást nyújt a szerszámok és egyéb kerti eszközök tárolására, így a kert mindig rendezett és ápolt maradhat.Az otthon melegéről gáz-cirkó kazán gondoskodik, radiátoros hőleadással, ami gazdaságos és kényelmes megoldás a téli hónapokban, további alternatívaként egy hangulatos cserépkályha is helyet kapott, a légkondicionáló berendezés pedig a nyári melegben biztosítja a kellemes hőmérsékletet.A környék csendes és biztonságos, tökéletes választás családoknak.Az ellátottság kiváló, hiszen a közelben található bolt, iskola és orvosi rendelő is.Az ingatlan kitűnő közlekedési lehetőségekkel rendelkezik, így könnyedén elérheted a város többi részét autóval vagy tömegközlekedéssel egyaránt.A parkolóhelyek tekintetében az ingatlanhoz kapcsolódó garázs áll rendelkezésedre, amelyben akár két autó is kényelmesen elfér.Ez az ingatlan nemcsak egy otthon, hanem egy életstílus is, amely a természet közelségét és a városi élet előnyeit ötvözi, ha kérdéseid lennének, vagy szeretnéd személyesen is megtekinteni ezt a csodás ingatlant, bátran keress bizalommal!Itt az idő, hogy megtaláld álmaid otthonát!Teljes körű ügyintézéssel:- Ügyvéd- Biztosítás- Generálkivitelezés- Ingatlanértékesítés- Teljeskörű ingatlanfelújítás- Bankfüggetlen hiteltanácsadás- CSOK, babaváró, áfa visszaigénylés - állunk rendelkezésére!

További adatok

Telekterület: 1 233 m2
Kert mérete: 1 233 m2
Erkély mérete: 10 m2
Felszereltség: -
Parkolás: -
Kilátás: kertre néző
Egyéb extrák:  
-

Hirdető adatai

Hirdető neve: B&B Ingatlan powered by RH tanácsadói
Kapcsolattartó: Balogh János
Hirdető telefonszáma: +36 30 651 4841
Honlap: -

Üzenetet küldhet a hirdetőnek:
Az Ön neve:
Az Ön e-mail címe:
Üzenet: