Pest megye, Vác


Vác 

Hivatkozási szám: 3170921

Ingatlan adatai

Irányár: 61 500 000 Ft
Típus: lakás (tégla)
Kategória: eladó
Alapterület: 56 m2
Fűtés: távfűtés
Állapota: -
Szobák száma: 2
Építés éve: -
Szintek száma: -

Részletes leírás

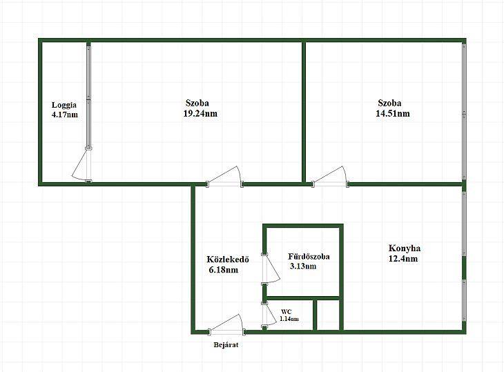
Vácon, a közkedvelt Deákváron eladó egy 3. emeleti, erkélyes lakás. A lakás jól átgondolt elosztású: előszoba, két külön nyíló szoba, konyha étkezővel, fürdőszoba és külön WC. Az ingatlan világos és barátságos, nyílászárói – egy szoba kivételével – dupla üvegű, thermo műanyag ablakok. A villamoshálózat részben felújított.A fűtést egyedi mérős távhő biztosítja és emellett hűtő-fűtő klíma is rendelkezésre áll. Szigetelés 3cm a belső falakon. Délnyugati fekvésének köszönhetően a lakás egész nap napfényes, tágas, kellemes élettereket kínál, az erkély pedig remek lehetőséget ad a pihenésre vagy kikapcsolódásra. Parkolás az épület környékén az utcán ingyenesen megoldható.Az infrastruktúra kiváló: 5 perc sétán belül elérhetők boltok, iskola, óvoda, bölcsőde, gyógyszertár, orvosi rendelő és buszmegálló, így a belváros gyorsan és kényelmesen megközelíthető. Nyugodt, mégis jól ellátott környezetben kínál ez az ingatlan kiváló lehetőséget új otthon megteremtésére.Kérdésével, illetve megtekintési szándékával keresse irodánkat. Amennyiben hitelre lenne szüksége új otthonának megvásárlásához, profi hitelközvetítő kollégáink állnak rendelkezésükre.Amennyiben eladásra lenne szükségük a vásárláshoz, irodánk egész Vác területén ingyenes értékbecslést vállal.

További adatok

Telekterület: -
Kert mérete: -
Erkély mérete: -
Felszereltség: -
Parkolás: -
Kilátás: utcai
Egyéb extrák:  
-

Hirdető adatai

Hirdető neve: MPD Hungary Kft.
Kapcsolattartó: La Casa di Vác Kft.
Hirdető telefonszáma: +36202835232
Honlap: -

Üzenetet küldhet a hirdetőnek:
Az Ön neve:
Az Ön e-mail címe:
Üzenet: