Budapest, VI.kerület


 

Hivatkozási szám: 3170531

Ingatlan adatai

Irányár: 256 861 000 Ft
Típus: lakás (újépítésű)
Kategória: eladó
Alapterület: 50 m2
Fűtés: -
Állapota: új
Szobák száma: 2
Építés éve: 2026
Szintek száma: -

Részletes leírás

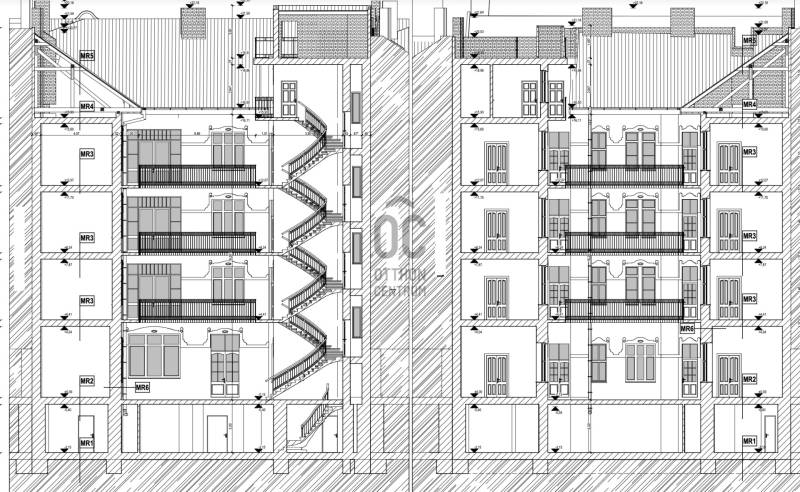
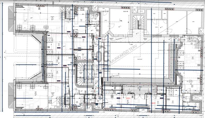
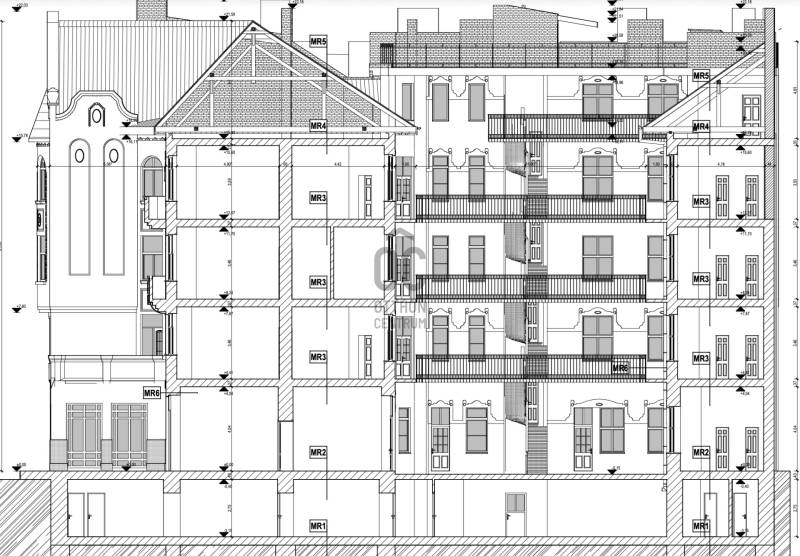
04.lakás: B:60,79m² /N:49,82m² lakó + 57,55m² terasz, (2szoba/1fürdő), D/4em. (256,9 MFt).250 m -re a Bazilikától, 4 lakás épül - kis lakásszámú fejlesztéssel – a legfelső emeleten.Lakás elosztás – jól átgondolt terekkel (2db szoba/1db fürdőszoba):Előtér: 6,69 m²,Nappali: 19,41 m²,Konyha: 6,59 m²,Közlekedő: 1,88 m²,Fürdő: 4,86 m²,Szoba: 8,55 m²,Nappali: 1,84 m²,Összesen: Lakás Nettó: 49,82 m² / Lakás Bruttó: 60,79 m² / Terasz: 57,55 m².Műszaki tartalom – alacsony rezsi, magas komfort:„A” energetikai besorolású, hőszivattyús rendszerrel,Felület fűtés–hűtés minden helyiségben,Választható, minőségi burkolatok és szaniterek,Téglafalak kívül-belül, korszerű, szigetelt nyílászárók, nappaliban emelő-toló ajtó,Szigetelt falazat és tető, elektromos redőny előkészítéssel,A műszaki megoldások hosszú távon kiszámítható, energiahatékony fenntartást biztosítanak,A lakás kiváló választás állandó otthonnak, nyaralónak vagy akár üzleti befektetésre is.Finanszírozás, környezet, parkolás:A lakás CSOK igénybevételére alkalmas,Kedvező finanszírozási konstrukciókkal megvásárolható,Duplakomfortos infrastruktúrával rendelkező, élhető terekkel hatalmas teraszokkal,Boltokkal, éttermekkel, sétatávolságon belüli belvárossal,A telken belül gépkocsi-beálló, parkoló megoldható. Elérhető lakások a fejlesztésben:01.lakás: B:140,9m² /N:105,9m² lakó + 58,5m² terasz, (3szoba/2fürdő), NY/4em. (476,50 MFt),02.lakás: B:96,8m² /N:76,12m² lakó + 12,93m² terasz, (3szoba/2fürdő), ÉNY/4em. (289,15 MFt),03.lakás: B:38,41m² /N:36,11m² lakó + 8,55m² terasz, (3szoba/2fürdő), ÉK/4em. (134,90 MFt),04.lakás: B:60,79m² /N:49,82m² lakó + 57,55m² terasz, (3szoba/2fürdő), DK/4em. (256,9 MFt).*(B)=Az összes négyzetméter burkolva, 190cm-er alatti kihasználható részekkel.4db lakás: B:336,92 m²/N:267,97 m² lakó + 137,5 m² terasz – 1.157.319.Ft. értékkel eladó. Akiknek ajánljuk:Az ingatlan ideális választás mindazoknak, akik a Budapest közvetlen belvárosában keresnek modern, napfényes, jól kihasználható terekkel rendelkező otthont – akár életvitelszerűen, akár nyaralóként vagy befektetésként is rendkívül jól hasznosítható.Projekt bemutatásaMűszaki leírás tartalma:

További adatok

Telekterület: -
Kert mérete: -
Erkély mérete: 58 m2
Felszereltség: -
Parkolás: -
Kilátás: utcai
Egyéb extrák:  
-

Hirdető adatai

Hirdető neve: Otthon Centrum
Kapcsolattartó: Füleki Szabolcs
Hirdető telefonszáma: +36 70 469 3676
Honlap: -

Üzenetet küldhet a hirdetőnek:
Az Ön neve:
Az Ön e-mail címe:
Üzenet: