Pest megye, Göd


Göd 

Hivatkozási szám: 3169718

Ingatlan adatai

Irányár: 184 900 000 Ft
Típus: ház
Kategória: eladó
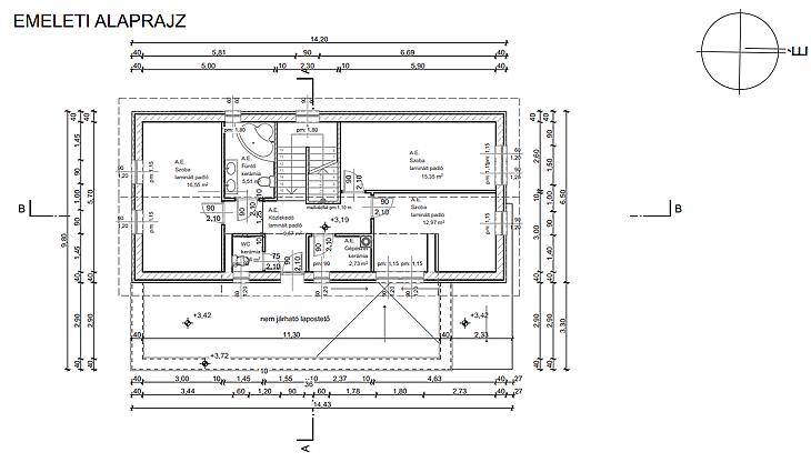
Alapterület: 181 m2
Fűtés: gáz (cirko)
Állapota: új
Szobák száma: 5
Építés éve: 2026
Szintek száma: -

Részletes leírás

Göd központjában eladó újépítésű 182 m²-es, önálló családi ház, amelyhez 560 m²-es telek tartozik.Az ingatlan tégla falazattal épül, cserépfedéssel, valamint 10 cm-es dryvit szigeteléssel.Műanyag, thermo üvegezésű nyílászárók gondoskodnak a kiváló hő- és hangszigetelésről.Elosztása: földszinten található garázs, amerikai konyhás nappali, hálószoba, fürdőszoba, míg az emeleten 3 db hálószoba, fürdő WC külön és egy gépészeti helység.A fűtésről gázcirkó gondoskodik, padlófűtéses hőleadással.Az ingatlanba 2 darab hűtő-fűtő klíma is beépítésre kerül.Igény esetén a ház hőszivattyús rendszerrel is kérhető. Ebben az esetben az ingatlan ára 188 000 000 Ft.Várható átadás: 2026. JúniusJelen esetben foglalózás után, hideg meleg burkolatok, beltéri nyílászárók, szaniterek választhatóak melyek a meghirdetett ár részét képezik a belső műszaki tartalom szerint.További kérdéseivel, illetve megtekintési szándékával kérem keresse irodánkat.A hirdetésben szereplő adatok tájékoztató jellegűek.Az ingatlan hitelre is megvásárolható. Bankfüggetlen tanácsadóink, az ország összes pénzintézete közül gyorsan és gördülékenyen találja meg az Önnek legmegfelelőbb konstrukciót, egyedi kedvezményekkel. A hitel közvetítés díjmentes

További adatok

Telekterület: 560 m2
Kert mérete: 560 m2
Erkély mérete: -
Felszereltség: -
Parkolás: -
Kilátás: kertre néző
Egyéb extrák:  
-

Hirdető adatai

Hirdető neve: MPD Hungary Kft.
Kapcsolattartó: Vede Casa Kft.
Hirdető telefonszáma: +36301096915
Honlap: -

Üzenetet küldhet a hirdetőnek:
Az Ön neve:
Az Ön e-mail címe:
Üzenet: