Jász-Nagykun-Szolnok megye, Tiszaszentimre


 

Hivatkozási szám: 3169576

Ingatlan adatai

Irányár: 13 400 000 Ft
Típus: ház
Kategória: eladó
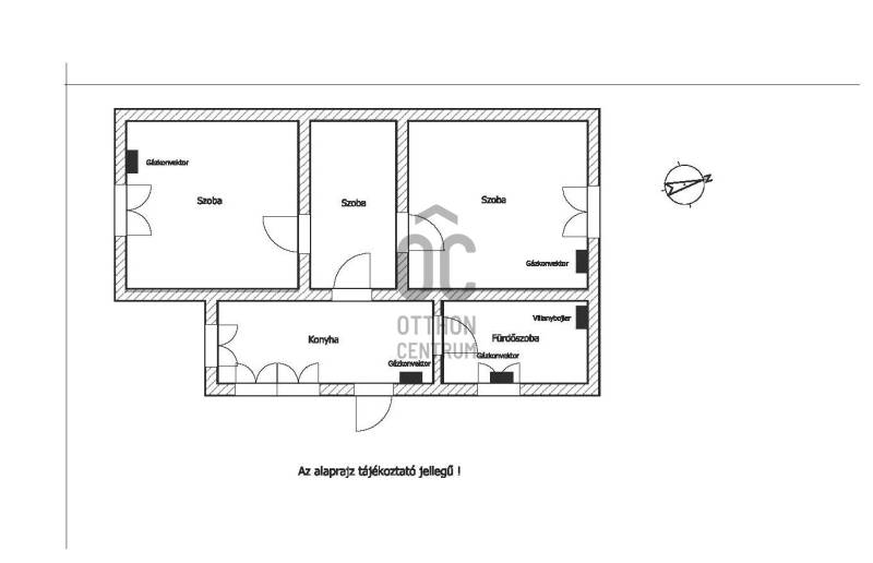
Alapterület: 71 m2
Fűtés: gáz (konvektor)
Állapota: -
Szobák száma: 3
Építés éve: 1955
Szintek száma: -

Részletes leírás

A Tisza-tó fővárosa, Tiszafüred közelében található kisközségben, Tiszaszentimrén, csendes utcában kínálok eladásra egy háromszobás családi házat.A település rendelkezik mindazon középületekkel, melyek az oktatáshoz, a művelődéshez, az egészségügyhöz és szociális ellátáshoz nélkülözhetetlenek. Minden utca szilárd burkolattal van ellátva. A kikapcsolódásra vágyóknak, a vízi sport szerelmeseinek, a horgászat kedvelőinek a Tisza-tó közelsége nyújt lehetőséget. A kirándulni vágyók egy órán belül gyönyörködhetnek a Hortobágy-puszta végtelenségében, vagy túrázhatnak az Északi-középhegység erdeiben. A gyógyulni vágyók felkereshetik Tiszafüred, Tiszaörs, Berekfürdő gyógyító hatású meleg vizes strandjait.Közel a Tisza-tóhoz, mégis távol annak zajától, csendes, biztonságos település várja a horgászni, vadászni, pihenni vágyó vendégeket.A környező utcákban és a szomszédságban is már holland és német tulajdonosok vásároltak maguknak ingatlant üdülés céljából.A 733 négyzetméteres udvar rendezett, szépen karban tartott állapotban várja leendő új gazdáját.A 71 négyzetméteres épület vályogból épült, azonnal költözhető, jó állapotban van. A beépített veranda téglából készült.Az épületben három szoba, egy fürdőszoba és egy konyha lett kialakítva.A fűtés gázkonvektorokkal lett megoldva.Az ingatlanba minden közmű, gáz, villany, víz és csatorna is be van kötve.Amennyiben további felvilágosítást szeretne, keressen bizalommal!További szolgáltatások:-Ingyenes, bankfüggetlen hitelközvetítés-Hétvégén is elérhető értékesítési ügyelet!

További adatok

Telekterület: 733 m2
Kert mérete: 733 m2
Erkély mérete: 3 m2
Felszereltség: -
Parkolás: -
Kilátás: -
Egyéb extrák:  
-

Hirdető adatai

Hirdető neve: Otthon Centrum
Kapcsolattartó: Lang Zsolt
Hirdető telefonszáma: +36 70 412 3651
Honlap: -

Üzenetet küldhet a hirdetőnek:
Az Ön neve:
Az Ön e-mail címe:
Üzenet: