Vas megye, Kőszeg


 

Hivatkozási szám: 3169517

Ingatlan adatai

Irányár: 49 900 000 Ft
Típus: lakás (újépítésű)
Kategória: eladó
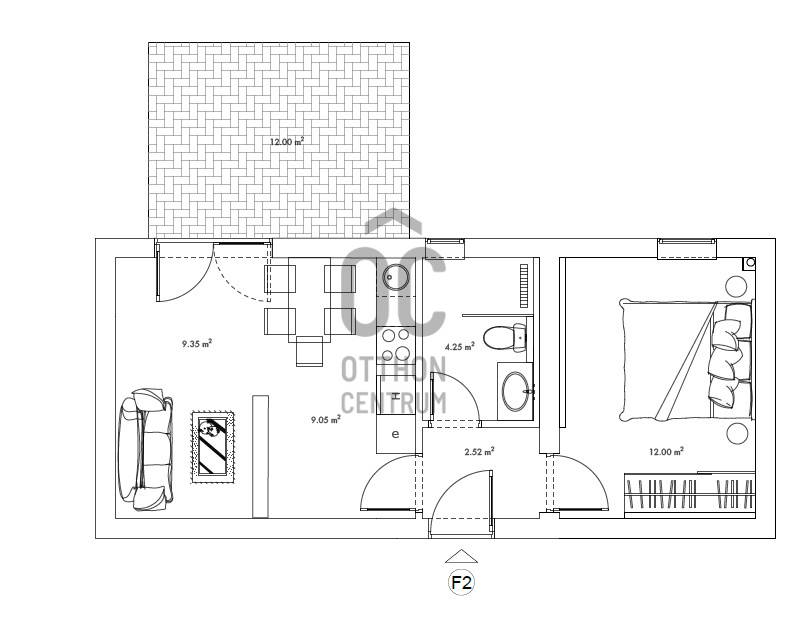
Alapterület: 43 m2
Fűtés: elektromos
Állapota: új
Szobák száma: 2
Építés éve: 2026
Szintek száma: -

Részletes leírás

Kőszegben, Vas vármegyében elérhető ez a modern, új építésű lakás, amely ideális választás lehet befektetők számára, akik értékelik a prémium kivitelezést és az egyedi tervezést. Az ingatlan alapterülete 42,63 négyzetméter, melyben egy tágas, világos nappali -étkező, hálószoba és egy fürdőszoba található, így minden igényt kielégít a kényelmes életvitelhez. Az ingatlan állapota kiváló, a legmodernebb megoldásokkal van felszerelve, amely varázslatos atmoszférát teremt otthonában. . A fűtés megújuló energiaforrásokkal működik, így Ön nemcsak a környezet védelmét szolgálja, hanem hosszú távon költségeit is csökkentheti. A környék ellátottsága kiváló, hiszen a közeli üzletek, éttermek és szolgáltatások mindössze néhány perc sétára találhatók. A közlekedés kitűnő, gyors és kényelmes eljutást biztosítanak a környező településekre , Ausztria 3 km-re. Kőszeg csendes utcái és biztonságos környezete ideális választássá teszik ezt az ingatlant családok, fiatal párok és befektetők számára egyaránt.A lakópark területén elérhető, már üzemelő fitness, egyedi masszázs, AI vezérelt privát fitness akár személy edzéssel, Infrashape kerékpár, Myfit áll rendelkezésre az itt élők számára.ELŐÉRTÉKESÍTÉSI KEDVEZMÉNYEK:-előszerződéskötéskor a vételár 90% megfizetése esetén 5% kedvezmény a vételárból ,Modern megoldások, otthonos kényelem Ne hagyja ki ezt a lehetőséget, hogy egy modern, jól megtervezett otthonra tegyen szert, amely nemcsak lakóhely, hanem egyben értékálló befektetés is. Bármilyen kérdése merülne fel az ingatlannal vagy a vásárlási folyamattal kapcsolatban, bizalommal kereshet minket! A célunk, hogy Ön a lehető legjobb döntést hozza meg, és a legmagasabb szintű szolgáltatást nyújtsuk Önnek az ingatlanpiacon.Projekt leírásProjekt bemutatásaIsmerje meg a Kőszeg-River SPA Lakópark legújabb, 6 lakóegységes társasházának kínálatát, ahol modern lakások és extra szolgáltatások várnak.Miért érdemes választani?A lakópark elhelyezkedése egyszerre határmenti és belvároshoz közeli, így az értéknövekedés és a kiadhatóság szinte garantált. A hangulatos, motoros úszókapuval zárt udvar központi eleme a süllyesztett, 6.5 x 3,5 méteres medence, melyet egy külön nyíló wellness-rész egészít ki, hogy a pihenés és kényelem minden nap elérhető legyen.A lakópark területén elérhető, már üzemelő fitness, egyedi masszázs, AI vezérelt privát Fitness akár személy edzéssel, Infrashape kerékpár, Myfit.Modern megoldások, otthonos kényelemAz épület modern, letisztult stílusával és korszerű technológiájával a jövő otthonkeresőit célozza meg. Minden lakás:-Inverteres hűtő/fűtő klíma , infrafilm padlófűtéssel rendelkezik, amely nemcsak kényelmes, de környezetbarát is.-hővisszanyerős légcserélő gondoskodik a folyamatos jó minőségű levegőről.-Minimális rezsiköltség, hatékony és gyors, egyedi fűtésrendszer - Fokozott szigetelést kapott a padozat, a födém, a lábazat és a homlokzat tekintetében, megfelelve a legszigorúbb szabványoknak.- Háromrétegű, hő- és hangszigetelt nyílászárókkal van felszerelve.-meleg víz ellátást levegő-hőszivattyús villanybojler biztosítjaA vételár tartalmazza:• Egy saját parkolóhelyet.• Kulcsrakész állapotot burkolatok, kapcsolók dugaljak,szaniterek,beltéri ajtók tartalmazzák.Garázs is vásárolható : 6 db érhető el, ára a későbbiekben kerül meghatározásra.Lakások és árak:• FSZ/1: 42,63 nm +12,3 nm terasz+49,5 nm kert– 54,9 millió Ft• FSZ/2 : 37,09 nm+ 12 nm terasz+42 nm kert – 49,9 millió Ft• FSZ/3: 55,38 nm+12,03 terasz+ 100 nm kert – 64,9 millió Ft• 1/4: 42,67 nm +1,36 nm terasz– 47,9 millió Ft• 1/5: 37,91 nm +4.75 nm terasz– 44,9 millió Ft• 1/6: 55,4 nm+ 6,15 nm terasz – 61,9 millió FtMiért válassz minket?Több évtizedes tapasztalatunk van családi házak és társasházak építésében – referenciáink közötta kisebb projektektől egészen a 30+ lakásos társasházakig minden megtalálható. Vásárlóinkelégedettsége és ingatlanjaik értéknövekedése a garancia arra, hogy nálunk jó döntést hozol.Ne maradj le! Foglalj elővételben, és élvezd a határmenti otthon nyújtotta kényelmet és extraszolgáltatásokat!A beruházó az esetleges módosítások és anyagváltoztatás jogát fenntartja. A látványképek extra látványelemeket is tartalmazhatnak, ezek utólagosan nem számonkérhetők.

További adatok

Telekterület: -
Kert mérete: -
Erkély mérete: 12 m2
Felszereltség: -
Parkolás: -
Kilátás: udvari
Egyéb extrák:  
-

Hirdető adatai

Hirdető neve: Otthon Centrum
Kapcsolattartó: Tóth Éva
Hirdető telefonszáma: +36 70 412 5241
Honlap: -

Üzenetet küldhet a hirdetőnek:
Az Ön neve:
Az Ön e-mail címe:
Üzenet: