Borsod-Abaúj-Zemplén megye, Tiszaújváros


 

Hivatkozási szám: 3169032

Ingatlan adatai

Irányár: 175 000 000 Ft
Típus: kereskedelmi/ipari ingatlan
Kategória: eladó
Alapterület: 633 m2
Fűtés: -
Állapota: -
Szobák száma: -
Építés éve: -
Szintek száma: -

Részletes leírás

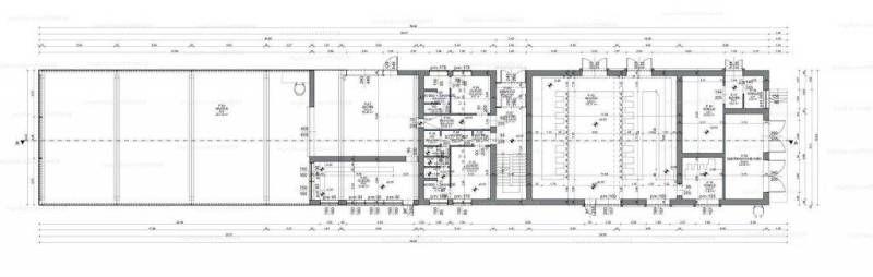
ELADÓ TELEPHELY KIEMELKEDŐ LOKÁCIÓVAL!Tiszaújvárosban a MOL Petrolkémia Zrt. területén eladó 643nm alapterületű telken nettó 633nm-es, két szintes, teljes körűen felújított telephely. Ez a sokoldalúan hasznosítható épület a MOL belső területén, az M3 autópálya felhajtójához közel, könnyen megközelíthető helyen található. Kitűnő választás a MOL területén dolgozó vagy jövőben munkát vállaló karbantartó, gyártó és raktározó cégek részére.Az ingatlan jellemzői:- 2021-ben teljes körű felújításon esett át- vasbeton vázszerkezete hőszigetelt szendvicspanel falazatot kapott- közművek: víz, csatorna, 3 X 200 Amper áram- hőszigetelt műanyag ablakok és ajtók kerültek beépítésre- hörmann szekcionált ipari garázskapukon keresztül kamionnal is megközelíthető- raktárak belmagassága 6m és 7m- földszint alapterülete: nettó 567nmkét külön nyíló tágas raktár sokféle tárolási, gyártási vagy szerelési tevékenységre alkalmasöltöző, vizesblokk, teakonyha több fős személyzet kiszolgálására nyújt lehetőséget- emelet alapterülete: nettó 66nmkitűnő helyet biztosít az adminisztratív tevékenység elvégzésére- parkolási lehetőség az épület előtt alkalmas személy- és tehergépkocsik számára- kiváló a megközelíthetősége, jól járható az útvonal a kapuhoz- azonnal birtokba vehető- telek is saját tulajdonban van, mely a MOL területén egyedülállóA MOL területe biztonságos, ellenőrzött, a porta épületen keresztül rugalmasan megközelíthető. Stratégiai elhelyezkedés az M3 autópálya felhajtójánál, ideális logisztikai, raktározási vagy könnyűipari tevékenységekhez.Ez a telephely ideális választás olyan vállalkozások számára, akik sokoldalúan hasznosítható ingatlant keresnek, akár saját használatra, akár befektetési célból.Amennyiben szeretné megtekinteni a telephelyet, kérem, hívjon! Vevőink részére szolgáltatásunk ingyenes. Díjmentes, bankfüggetlen hitel ügyintézéssel állunk Ügyfeleink rendelkezésére!MIK azonosító: 3913108

További adatok

Telekterület: -
Kert mérete: -
Erkély mérete: -
Felszereltség: -
Parkolás: -
Kilátás: -
Egyéb extrák:  
-

Hirdető adatai

Hirdető neve: MIK Magyar Ingatlan Központ
Kapcsolattartó: Dévald Éva
Hirdető telefonszáma: +36-70-6363321
Honlap: -

Üzenetet küldhet a hirdetőnek:
Az Ön neve:
Az Ön e-mail címe:
Üzenet: