Pest megye, Dabas


 

Hivatkozási szám: 3168393

Ingatlan adatai

Irányár: 65 000 000 Ft
Típus: ház
Kategória: eladó
Alapterület: 100 m2
Fűtés: házközponti fűtés
Állapota: új
Szobák száma: 3
Építés éve: 2025
Szintek száma: -

Részletes leírás

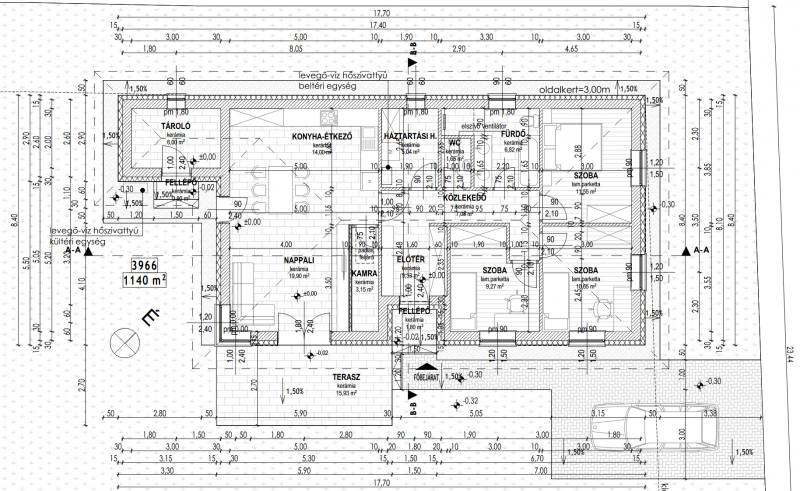
Megbízható, tapasztalt kivitelező Dabas és vonzáskörzetében vállalja az ehhez hasonló modern családi ház teljes körű megépítését – az alapoktól egészen a kulcsrakész átadásig. Épít saját telekre,A telek kiválasztásában és ügyintézésében is segítünk, ha még nincs meg az ideális helyszín.Egyedi vagy típusház megoldásokModern, energiatakarékos műszaki tartalomGyors, határidőre történő kivitelezés Megbízható csapat, valós referenciákkal100 nm-es 3 szoba + amerikai konyhás nappali, fürdőszoba, háztartási helyiség.Főbb műszaki jellemzők:18 nm-es terasz30-as tégla falazat, 15 cm hőszigetelésModern, rejtett tokos redőnyök + szúnyoghálóH-tarifás hőszivattyú gondoskodik a padlófűtésről és melegvízről2 db klímaberendezés biztosítja a hűtést és a kiegészítő fűtéstBurkolatok 10 000 Ft/nm értékig szabadon választhatók100 nm-es háznál az ár: 650.000.-/nm80 nm-es háznál az ár: 750.000.-/nm Referencia ház megtekintehtő Dabason. Amennyiben hirdetésem felkeltette érdeklődését, keressen az alábbi elérhetőségek egyikén.

További adatok

Telekterület: 1 100 m2
Kert mérete: 1 100 m2
Erkély mérete: -
Felszereltség: -
Parkolás: -
Kilátás: -
Egyéb extrák:  
-

Hirdető adatai

Hirdető neve: Dabas Régió
Kapcsolattartó: Szládikné Kitti
Hirdető telefonszáma: 06204004034
Honlap: -

Üzenetet küldhet a hirdetőnek:
Az Ön neve:
Az Ön e-mail címe:
Üzenet: