Hajdú-Bihar megye, Debrecen


 

Hivatkozási szám: 3168352

Ingatlan adatai

Irányár: 199 000 000 Ft
Típus: ház
Kategória: eladó
Alapterület: 150 m2
Fűtés: -
Állapota: új
Szobák száma: 4
Építés éve: 2025
Szintek száma: -

Részletes leírás

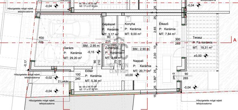
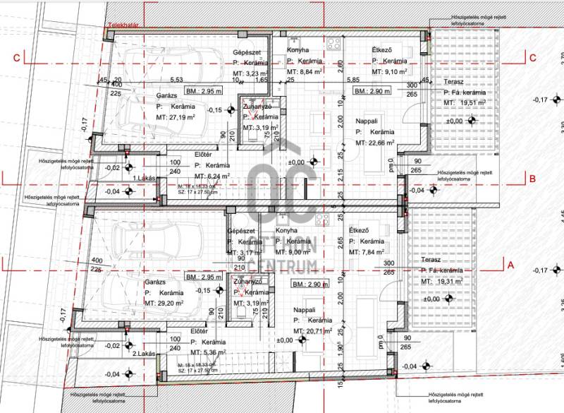
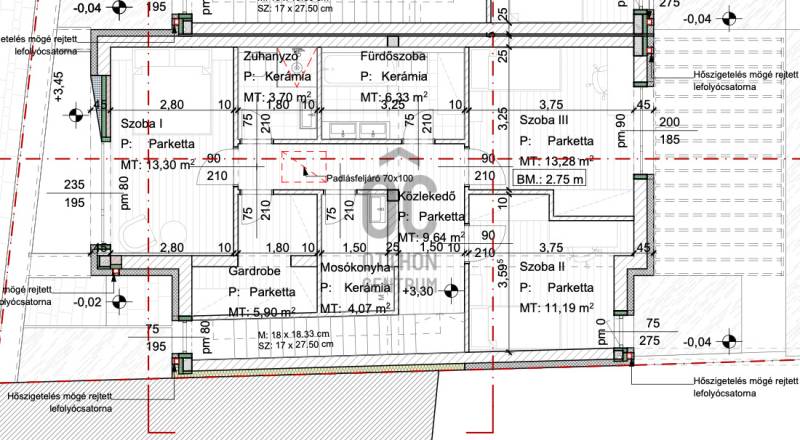
Debrecen belvárosában – csendes utcában – 90%-os készültségű, 170 m²-es luxus ikerház dupla garázzsal eladó!Az ár kulcsrakész állapotra vonatkozik.Debrecen egyik legjobban értékelhető, csendes belvárosi utcájában kínáljuk megvételre ezt a kivételes műszaki tartalommal és premiummal megépített, újépítésű ikerházat. A jelenlegi 90%-os készültségi szinten a burkolatok még szabadon választhatók, így a leendő tulajdonos saját stílusára formálhatja otthonát.Főbb jellemzők:tágas nappali–étkező–konyha3 külön nyíló hálószoba3 magas minőségű fürdőszobakényelmes gardróbháztartási helyiségdupla garázs közvetlen bejutássalburkolatok választhatókkonyhabútor előkészítve, igény szerint egyedileg tervezhetőPrémium műszaki felszereltség:Daikin hőszivattyú, teljes házban hőszivattyús padlófűtésklimatizált helyiségekelektromos alumínium okos redőnyökvízlágyítómodern riasztórendszer, kamerarendszer, kamerás kaputelefonKert és külső terek:gondosan kialakított, parkosított kertautomata öntözőrendszerrobotfűnyíró előkészítéseMiért kivételes ajánlat?Kulcsrakész ár! – nincs plusz költség, minden benne van90%-os készültség → rövid költözési idő, de még személyre szabhatóBelvárosi, mégis csendes elhelyezkedésPrémium gépészet, modern technológia, időtálló értékBővebb tájékoztatásért, vagy megtekintésért várom hívását!

További adatok

Telekterület: 235 m2
Kert mérete: 235 m2
Erkély mérete: 25 m2
Felszereltség: -
Parkolás: -
Kilátás: -
Egyéb extrák:  
-

Hirdető adatai

Hirdető neve: Otthon Centrum
Kapcsolattartó: Szaszala Zsolt
Hirdető telefonszáma: +36 70 469 3681
Honlap: -

Üzenetet küldhet a hirdetőnek:
Az Ön neve:
Az Ön e-mail címe:
Üzenet: