Budapest, XIII.kerület


 

Hivatkozási szám: 3168067

Ingatlan adatai

Irányár: 155 000 000 Ft
Típus: lakás (tégla)
Kategória: eladó
Alapterület: 62 m2
Fűtés: gáz (cirko)
Állapota: -
Szobák száma: 2
Építés éve: 1950
Szintek száma: -

Részletes leírás

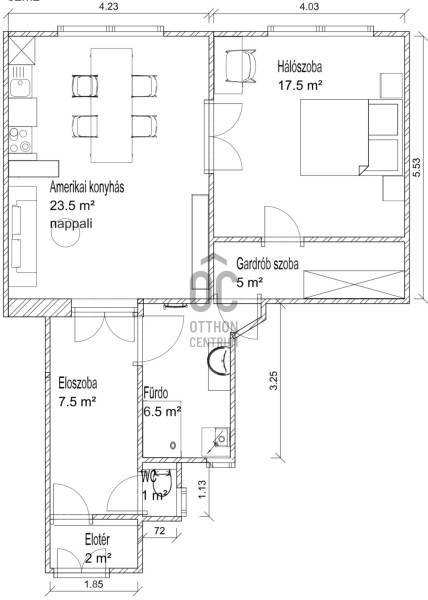
Kivételes lehetőség befektetők számára! Budapest 13. kerületében, a felkapott Újlipótváros szívében kínálunk eladásra egy 62 nm alapterületű, frissen felújított lakást, amely kiváló állapotban várja új tulajdonosát. Ez a tágas, két szobás ingatlan ideális választás lehet mindazok számára, akik egy belvárosi otthonra vágynak, vagy befektetési céllal keresnek ingatlant. A lakásban található amerikai konyhás, konyhaszigetes megoldás nemcsak praktikus, hanem stílusos is, a beépített bútorok és szekrények pedig maximálisan kihasználják a teret. A nagy belmagasságú nappali világos és barátságos atmoszférát teremt, amely tökéletes helyszín a családi és baráti összejövetelekhez. A lakás gáz cirkó fűtésének és klímájának köszönhetően az év bármely szakában kellemes hőmérsékletet biztosít. A környék ellátottsága kiváló: a közeli üzletek, kávézók és éttermek mind könnyen elérhetők, így az itt élők számára a mindennapi élet kényelmes és élvezetes. Az ingatlan központi elhelyezkedése lehetővé teszi a gyors közlekedést, legyen szó autós vagy tömegközlekedési lehetőségekről. A közelben található busz- és villamosmegállók, valamint a metró is könnyen hozzáférhető, így a város többi része is pillanatok alatt elérhető. Az Újlipótváros nemcsak a fiatalok, hanem a családok körében is népszerű, hiszen a környék biztonságos és csendes, ideális otthont biztosít a pihenésre és a feltöltődésre. A lakás tehermentes, így azonnal birtokba vehető, ami különösen előnyös lehet a befektetők számára. Ne hagyja ki ezt a remek lehetőséget, hiszen az ingatlan piaca folyamatosan változik, és egy ilyen egyedi tervezésű, világos lakás gyorsan keresetté válhat. Ha bármilyen kérdése van, vagy szeretné megtekinteni ezt a különleges ingatlant, bizalommal keressen minket! Az Ön elégedettsége a mi prioritásunk, és szívesen segítünk Önnek megtalálni álmai otthonát vagy befektetését.

További adatok

Telekterület: -
Kert mérete: -
Erkély mérete: -
Felszereltség: -
Parkolás: -
Kilátás: utcai
Egyéb extrák:  
-

Hirdető adatai

Hirdető neve: Otthon Centrum
Kapcsolattartó: Posváncz Katalin
Hirdető telefonszáma: +36 70 716 9671
Honlap: -

Üzenetet küldhet a hirdetőnek:
Az Ön neve:
Az Ön e-mail címe:
Üzenet: