Budapest, XXIII.kerület


 

Hivatkozási szám: 3167956

Ingatlan adatai

Irányár: 124 990 000 Ft
Típus: ház
Kategória: eladó
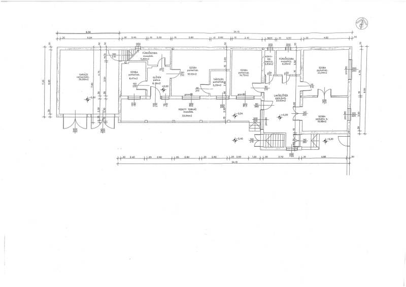
Alapterület: 306 m2
Fűtés: gáz (cirko)
Állapota: -
Szobák száma: 6
Építés éve: 1960
Szintek száma: -

Részletes leírás

Fedezze fel Budapest 23. kerületének, Soroksárnak rejtett kincseit, ahol az otthon és a befektetés tökéletes harmóniában találkozik! Ez a használt, 306 négyzetméteres nettó hasznos alapterületű, tágas családi ház ideális választás azok számára, akik egy olyan otthonra vágynak, amely nemcsak kényelmet, hanem lehetőségeket is kínál. A 797 négyzetméteres telken elhelyezkedő ingatlan rendkívül sokoldalú, jelen kialakítás szerint üzlethelyiség és raktár, azonban az alapterületéből és kialakításából adódóan könnyen kétgenerációs családi házzá alakítható, mely bőséges teret biztosít családoknak, baráti összejöveteleknek vagy akár munkatársakkal való közös projektek lebonyolítására.A ház tehermentes, így Ön gyorsan birtokba veheti új otthonát, és azonnal élvezheti a családi élet örömeit. Soroksár nem csupán a nyugalom szigete, hanem egy dinamikusan fejlődő környék is. A közlekedési lehetőségek kiválóak, hiszen a város központja könnyen elérhető autóval és tömegközlekedéssel egyaránt. Az M5-ös autópálya és az M0-ás autóút közelsége lehetővé teszi, hogy gyorsan eljusson a főváros bármelyik pontjára, míg a helyi buszjáratok és a H 6-os HÉV rendszeres közlekedéssel biztosítják a városi élet kényelmét.Az ingatlan közelében található iskolák, óvodák és boltok, és minden szükséges szolgáltatás karnyújtásnyira elérhető. A zöldövezeti elhelyezkedés lehetővé teszi a szabadtéri programok, sportolási lehetőségek kiaknázását, miközben a város nyüzsgése is könnyen megközelíthető.Ez a tehermentes ingatlan ideális választás lehet első otthonnak nagy családosoknak, akár két generáció összeköltözése esetén vagy befektetési céllal is, hiszen a kereslet a környéken folyamatosan növekszik, így értékálló befektetést jelenthet. Ha Ön is szeretné kihasználni ezt a remek lehetőséget, ne habozzon, keressen bizalommal! Szívesen válaszolunk kérdéseire és segítünk Önnek megtalálni álmai otthonát vagy befektetését. Az ingatlanpiac dinamikusan változik, így érdemes lépni, hogy ne maradjon le erről a kivételes ajánlatról!

További adatok

Telekterület: 797 m2
Kert mérete: 797 m2
Erkély mérete: -
Felszereltség: -
Parkolás: -
Kilátás: -
Egyéb extrák:  
-

Hirdető adatai

Hirdető neve: Otthon Centrum
Kapcsolattartó: Solt Péter
Hirdető telefonszáma: +36 70 716 8101
Honlap: -

Üzenetet küldhet a hirdetőnek:
Az Ön neve:
Az Ön e-mail címe:
Üzenet: