Pest megye, Vác


Vác 

Hivatkozási szám: 3167920

Ingatlan adatai

Irányár: 69 990 000 Ft
Típus: lakás (tégla)
Kategória: eladó
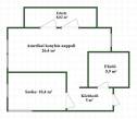
Alapterület: 51 m2
Fűtés: gáz (cirko)
Állapota: új
Szobák száma: 2
Építés éve: 2024
Szintek száma: -

Részletes leírás

Eladó Prémium Lakás Vácon, a Duna-part Szomszédságában!Vácon, a Duna-parttól mindössze fél perc sétára, a város egyik legbájosabb és legkeresettebb belvárosi részén kínálunk eladásra egy kimagasló minőségben kivitelezett, prémium kategóriás lakást.Az ingatlan minden tekintetben a modern igényekhez igazodik:Kiváló infrastruktúra – üzletek, tömegközlekedés, kávézók, éttermek pár lépésreTripla üvegezésű thermo nyílászárók a kiemelkedő hő- és hangszigetelésért15 cm-es külső szigetelés, energiatakarékos megoldásokKondenzációs gázkazános fűtés, korszerű és költséghatékony rendszerEgyedi hangszigetelés, így a szomszéd bulija sem zavarja majd nyugalmátElosztása praktikus és élhető:Tágas, világos amerikai konyhás nappali, ahonnan erkély nyílik Dunai panorámávalKényelmes hálószobaÍzléses fürdőszobaKözlekedőEz az ingatlan tökéletes választás mindazoknak, akik értékelik a modern építészetet, a prémium minőséget és a kivételes elhelyezkedést. Ne hagyja ki ezt az egyedülálló lehetőséget!További információért és megtekintésért hívjon bizalommal!

További adatok

Telekterület: -
Kert mérete: -
Erkély mérete: -
Felszereltség: -
Parkolás: -
Kilátás: utcai
Egyéb extrák:  
-

Hirdető adatai

Hirdető neve: MPD Hungary Kft.
Kapcsolattartó: La Casa di Vác Kft.
Hirdető telefonszáma: +36202835232
Honlap: -

Üzenetet küldhet a hirdetőnek:
Az Ön neve:
Az Ön e-mail címe:
Üzenet: