Tolna megye, Szekszárd


 

Hivatkozási szám: 3167393

Ingatlan adatai

Irányár: 89 000 000 Ft
Típus: ház
Kategória: eladó
Alapterület: 236 m2
Fűtés: gáz (cirko)
Állapota: -
Szobák száma: 6
Építés éve: 1980
Szintek száma: -

Részletes leírás

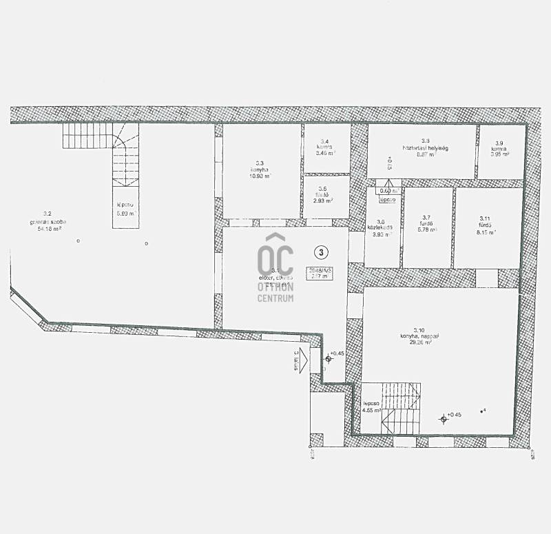
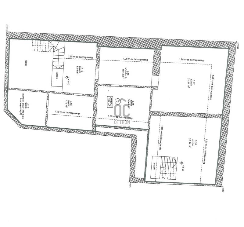
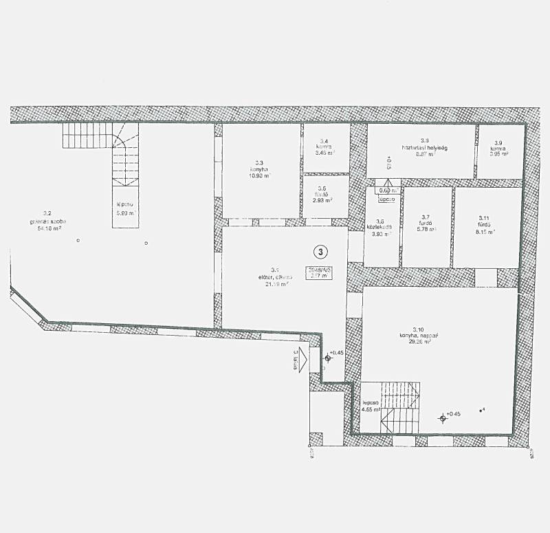
Ez a két szintes, mediterrán hangulatú, hőszigetelt családi ház ideális választás azoknak, akik igényes, kényelmes és energiatakarékos otthont keresnek egy csendes, mégis frekventált környéken.Főbb jellemzők:• 6 szoba• 2 nappali• 2 fürdőszoba• konyha, étkező, gardrób, háztartási helyiség• fedett, 25 m²-es terasz• borospince• fedett dupla gépkocsitárolóMűszaki adatok:• Fűtés: földszinten padlófűtés és radiátorok, emeleten radiátoros fűtés• Kondenzációs gázkazán• 300 literes indirekt melegíztároló, amely fűthető gázkazánról, napkollektorról vagy árammal• Két kémény – szilárd tüzelés lehetőségével• Ipari áram• Elektromos autó töltésére előkészített csatlakozás az udvarban• 10 cm vastag homlokzati hőszigetelés (Isolyth + hungarocell)• Tondach cserépfedés, párazáró fóliával és hibátlan tetőszerkezettel• Hőszigetelt nyílászárók redőnnyel és szúnyoghálóval• Réz elektromos vezetékek• Összközműves ingatlan• Klímaberendezések minden fontos helyiségbenBelső terek és kialakítás:A ház belső tereit modern, mégis mediterrán stílusú burkolatok és Ikea konyhabútor beépített gépekkel teszik otthonossá. A jól átgondolt alaprajznak köszönhetően a helyiségek tágasak és világosak.A fedett terasz ideális helyszín a pihenésre vagy vendégek fogadására, melyhez kemence és szabadtéri főzési lehetőség is tartozik.Egyéb információk:A ház 20 évvel ezelőtt teljes körű felújításon esett át, és azóta is kiváló állapotban van, folyamatosan karbantartott.Azonnal birtokba vehető! Kedves Ügyfelünk, az ingatlanról videót is készítettünk. Ha ezt a hirdetést az Otthon Centrum weboldalán nézi, akkor a videóra a képek után tud kattintani. Ha egy másik weboldalon találta ezt a hirdetést, kérem nyissa meg az Otthon Centrum weboldalát, kattintson a „Regisztrációs szám keresése” menüpontra, és írja be ezt a regisztrációs számot a keresőbe: H509937 Itt meg tudja tekinteni az ingatlanról készült videót. Vagy írjon nekem, és szívesen elküldöm a videót.________________________________________Ez az ingatlan kivételes lehetőség Szekszárdon – a Damjanich utca nyugodt, családi házas övezetében, mégis közel a város központjához.Ár és megtekintés részleteiért keressen bizalommal!Eladó ház Szekszárd belváros nagy terek zárt udvar dupla autóbeálló szerethető mediterrán otthon oc H509937________________________________________

További adatok

Telekterület: 334 m2
Kert mérete: 334 m2
Erkély mérete: 11 m2
Felszereltség: -
Parkolás: -
Kilátás: -
Egyéb extrák:  
-

Hirdető adatai

Hirdető neve: Otthon Centrum
Kapcsolattartó: Deliné Nagy Edit
Hirdető telefonszáma: +36 70 461 9696
Honlap: -

Üzenetet küldhet a hirdetőnek:
Az Ön neve:
Az Ön e-mail címe:
Üzenet: