Budapest, XXII.kerület


 

Hivatkozási szám: 3167063

Ingatlan adatai

Irányár: 109 000 000 Ft
Típus: ház
Kategória: eladó
Alapterület: 75 m2
Fűtés: -
Állapota: új
Szobák száma: 3
Építés éve: 2025
Szintek száma: -

Részletes leírás

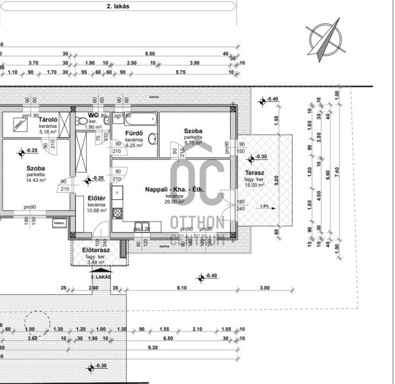
2026 első félévi KÖLTÖZÉSSEL XXII. kerületben, Nagytétényben, nettó 75 m2-es hasznos alapterületű, nappali + 2 szobás (teraszos), ÚJ ÉPÍTÉSŰ, IKERHÁZAT kínálunk eladásra!FÖLDSZINT:Nettó: 74,5 m2 lakórész + 15 m2 terasz + 4 elő-teraszAz ingatlanhoz saját, kizárólagos használatú, lekerített TELEKRÉSZ tartozik.Műszaki információk:Külső falazat: Leier 30 cm-es tégla, 10 cm-es Dryvit hőszigeteléssel, tetőszigetelés 30 cm-es Knauf üveggyapot, hőtükör fólia, diffúziós fólia. Terrán tetőcserép, szellőző cserepekkel kiegészítve.Műanyag nyílászárók: FENSTHERM FUTURE vagy Kömmerling 5 légkamrás, 3 rétegű üvegezéssel, résszellőző funkció.A fűtést és a meleg vizet 8 KW- os DAIKIN ALTHERMA HŐSZIVATTYÚ biztosítja, a hidegburkolattal rendelkező terekben padlófűtéssel, egyéb helyiségekben Vogel & Noote lapradiátorokkal kiegészítve.A vételár tartalmazza a teljes riasztó rendszer kiépítését, valamint a klíma kiállás kiépítését (kül – és beltéri egységet NEM), valamin a napelem rendszer elektromos előkészítését!A vételár NEM tartalmazza a hideg-meleg burkolatokat, a redőnyöket, szúnyoghálókat, a beltéri ajtókat, riasztóberendezést, csaptelepeket, valamint a szanitereket!Ezek munkadíja viszont az árban foglaltatik!Külön mérőórák, önálló telekrész!MÉRETEK, TÁJOLÁS, ELRENDEZÉS, AZ ALAPRAJZON!(Belső átalakítás a vevői igény szerint jelenleg még változtatható, alakítható)KIVÁLÓ KÖZLEKEDÉSI LEHETŐSÉGEK, iskola, óvoda, bölcsőde, rendelő, Campona, Lidl, Aldi, minden szükséges szolgáltatás karnyújtásnyira elérhető.Megtekinthető elkészült REFERENCIA munkák, CSOK PLUSZ, kedvezményes HITELEK FELVEHETŐK!

További adatok

Telekterület: 157 m2
Kert mérete: 157 m2
Erkély mérete: 15 m2
Felszereltség: -
Parkolás: -
Kilátás: -
Egyéb extrák:  
-

Hirdető adatai

Hirdető neve: Otthon Centrum
Kapcsolattartó: Solt Péter
Hirdető telefonszáma: +36 70 716 8101
Honlap: -

Üzenetet küldhet a hirdetőnek:
Az Ön neve:
Az Ön e-mail címe:
Üzenet: