Pest megye, Üllő


 

Hivatkozási szám: 3167046

Ingatlan adatai

Irányár: 80 000 000 Ft
Típus: ház
Kategória: eladó
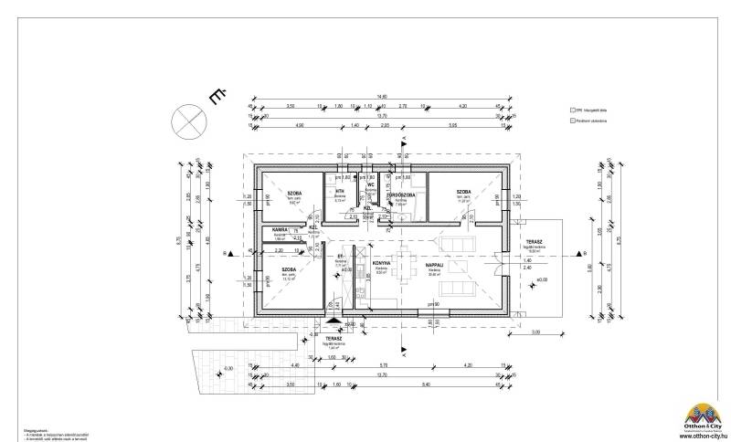
Alapterület: 102 m2
Fűtés: elektromos
Állapota: új
Szobák száma: 4
Építés éve: 2025
Szintek száma: -

Részletes leírás

LeírásKIVITELEZŐK, VÁLLALKOZÓ SZELLEMŰEK FIGYELEM!!ÜLLŐ CSENDES RÉSZÉN, BEFEJEZETLEN ( 70%) ÚJ CSALÁDI HÁZ ELADÓ!!Üllő csendes mellékutcájában, eladó egy 70 %-os készültségi fokú befejezetlen most épülő körbejárható, egyszintes 4 szobás, nettó 102 nm-es új családi ház, 550 nm-es telekkel, 17 nm-es terasszal, Igény és ízlés szerint befejezhető, válaszfalak változtathatóak, fűtés egyéni elképzelés szerint kialakítható, hőszivattyú stb. Az ár erre a készültségi fokra vonatkozik!!- műszaki tartalom:új műanyag 3 rétegű nyílászárók, 5 ponton záródó biztonsági bejárati ajtó, tetőszigetelés 30 cm, betoncserép, aljzat szigetelés 10 cm, 15 cm-es külső dryvit szigetelés, főfalak 30 cm-es Porotherm falazó tégla,- infrastruktúra:a közelben, iskola, óvoda, gyógyszertár, orvosi rendelő, üzletek, stb.-közlekedés:pár perc sétára, távolsági buszjárat elérhető.Ingyenes hitel tanácsadással, kedvezményes jogi képviselettel lehetünk segítségére.Energetikai szakvéleményre van szüksége? Jó helyre fordult.Megtetszett az ingatlan, de sajátját még nem adta el? Levesszük a gond nagy részét a válláról, segítséget nyújtunk az eladásban is. Bízza ránk az értékesítését!Kérésre ingyenes értékbecslést is végzünk az ingatlanán,hívjon minket bizalommal.

További adatok

Telekterület: 550 m2
Kert mérete: 550 m2
Erkély mérete: 17 m2
Felszereltség: -
Parkolás: -
Kilátás: -
Egyéb extrák:  
-

Hirdető adatai

Hirdető neve: Otthon & City ingatlan iroda
Kapcsolattartó: Farkas László
Hirdető telefonszáma: +36702400618
Honlap: -

Üzenetet küldhet a hirdetőnek:
Az Ön neve:
Az Ön e-mail címe:
Üzenet: