Pest megye, Diósd


 

Hivatkozási szám: 3166213

Ingatlan adatai

Irányár: 97 000 000 Ft
Típus: ház
Kategória: eladó
Alapterület: 105 m2
Fűtés: -
Állapota: új
Szobák száma: 5
Építés éve: 2026
Szintek száma: -

Részletes leírás

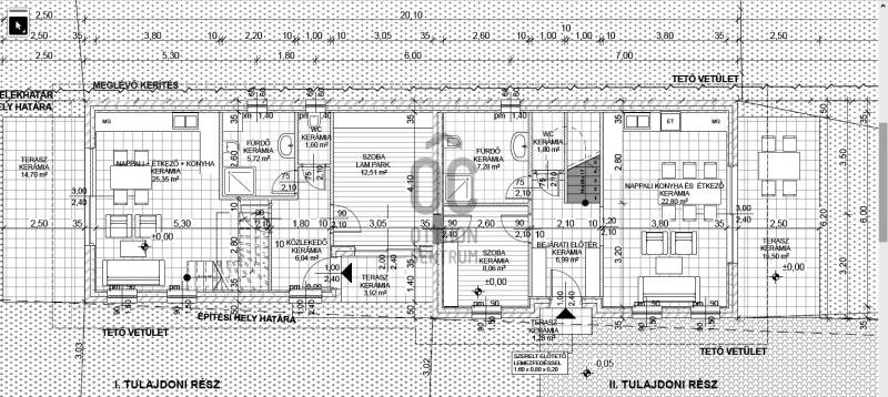
Diósd szívében, a csendes és zöldövezeti városrészben kínáljuk eladásraaz új építésű ikerfelet.Az ingatlan 106 nm hasznos területű, és a tágas, 4 szoba + amerikai konyhás nappalis elrendezésével minden igényt kielégít.A házhoz tartozik két fürdőszoba, egy vendég WC is.A 350 négyzetméteres saját kert lehetőséget biztosít a szabadban való pihenésre és a családi összejövetelek lebonyolítására.A hőszivattyús fűtés és Thermo-block falazat biztosítja a könnyű fenntarthatóságot. Kulcsrakész állapot szerződéskötést követő 6 hónapon belül!Magas műszaki tartalom, ajándék konyha 1 millió Ft-ig!Opcionálisan megvásárolható a jelenlegi, kb. 60%-os stádiumban is, 55.500.000 Ft-ért.A másik ikerfél is ELADÓ (99 nm hasznos területtel, bruttó 129,5 nm, 4 háló+amerikai konyhás nappali, 2 fürdőszoba + vendégWC+ gardrób): félkész állapot 66.000000 Ft, kulcsrakész állapot 105.000.000 Ft!Az egész épület egyben, félkészen 129.000.000 Ft, kulcsrakészen 211.000.000 FtHívjon bizalommal!Hitelre volna szüksége a vásárláshoz? Bankfüggetlen Hitelügyintézőnkkel állunk rendelkezésre ingyen!

További adatok

Telekterület: 350 m2
Kert mérete: 350 m2
Erkély mérete: 26 m2
Felszereltség: -
Parkolás: -
Kilátás: -
Egyéb extrák:  
-

Hirdető adatai

Hirdető neve: Otthon Centrum
Kapcsolattartó: Szilágyi Orsolya
Hirdető telefonszáma: +36 70 388 6316
Honlap: -

Üzenetet küldhet a hirdetőnek:
Az Ön neve:
Az Ön e-mail címe:
Üzenet: