Nógrád megye, Bátonyterenye


 

Hivatkozási szám: 3166179

Ingatlan adatai

Irányár: 41 941 000 Ft
Típus: kereskedelmi/ipari ingatlan
Kategória: eladó
Alapterület: 210 m2
Fűtés: -
Állapota: -
Szobák száma: -
Építés éve: 1995
Szintek száma: -

Részletes leírás

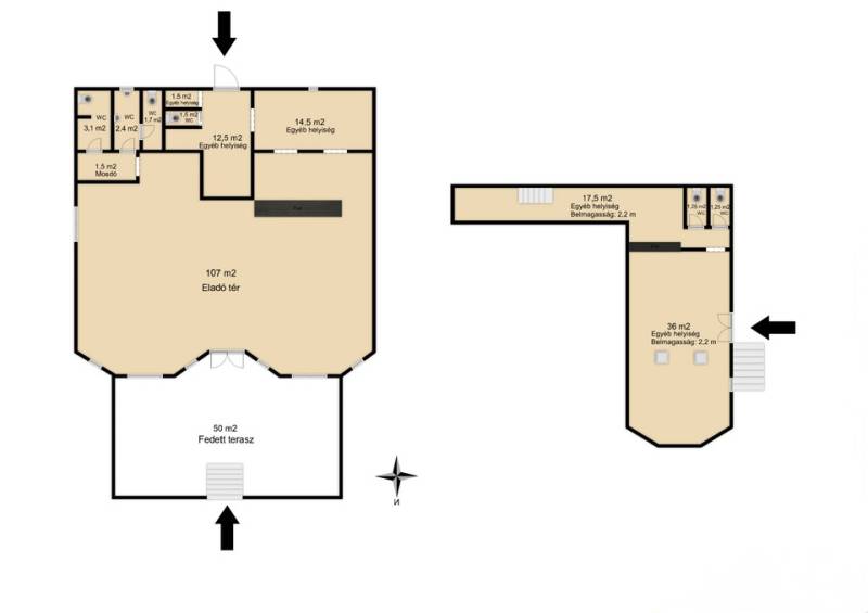
Főbb adatok:210 m²-es üzleti épület50 m²-es fedett terasz54 m²-es szuterén20 m²-es garázsAz épület mögött 180 m²-es, beton alapon épült csarnok, amely alkalmas -raktározásra -gyártásra-egyéb vállalkozási tevékenységreFelszereltség és műszaki jellemzők:-Padlófűtés és gáz (cirkó) fűtési rendszer-5,6 kW teljesítményű klímaBelmagasság:-Fő épület: 2,5 m – tágas, világos terek-Szuterén: 2,2 m – kényelmes munkaterület-10 cm-es hőszigetelés, műanyag nyílászárók, cseréptető-Térkövezett udvar és kert, ami könnyen karbantartható és teherforgalomra is alkalmasKiváló befektetési lehetőségEz az ingatlan ideális választás:-vállalkozásoknak, akik üzlethelyiséget, raktárat vagy irodát keresnek-befektetőknek, akik többfunkciós ingatlant szeretnének akár lakófunkció és vállalkozás kombinálására is alkalmas – a munka és az otthon egy helyen, mégis elkülönítve valósítható megLokáció és környezet-Az ingatlan Bátonyterenye forgalmas, mégis jól megközelíthető részén, a Rákóczi utcában találhatóKözlekedés:-buszmegálló néhány méterre-vasútállomás 5 perc sétára-ügyfelek és munkatársak számára is könnyen elérhetőKözelben:-kastélykert-több szolgáltatás és üzletIrodánk minden kedves új és régi ügyfelének szakszerű hitelügyintézést biztosít. Ha felkeltettem érdeklődését, hívjon bizalommal nézzük meg együtt az ingatlant.

További adatok

Telekterület: -
Kert mérete: -
Erkély mérete: -
Felszereltség: -
Parkolás: -
Kilátás: -
Egyéb extrák:  
-

Hirdető adatai

Hirdető neve: Otthon Centrum
Kapcsolattartó: Szűcs Noel
Hirdető telefonszáma: +36 70 469 3941
Honlap: -

Üzenetet küldhet a hirdetőnek:
Az Ön neve:
Az Ön e-mail címe:
Üzenet: