Jász-Nagykun-Szolnok megye, Jászfényszaru


 

Hivatkozási szám: 3166126

Ingatlan adatai

Irányár: 59 000 000 Ft
Típus: ház
Kategória: eladó
Alapterület: 148 m2
Fűtés: egyéb
Állapota: -
Szobák száma: 5
Építés éve: 2001
Szintek száma: -

Részletes leírás

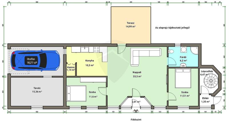
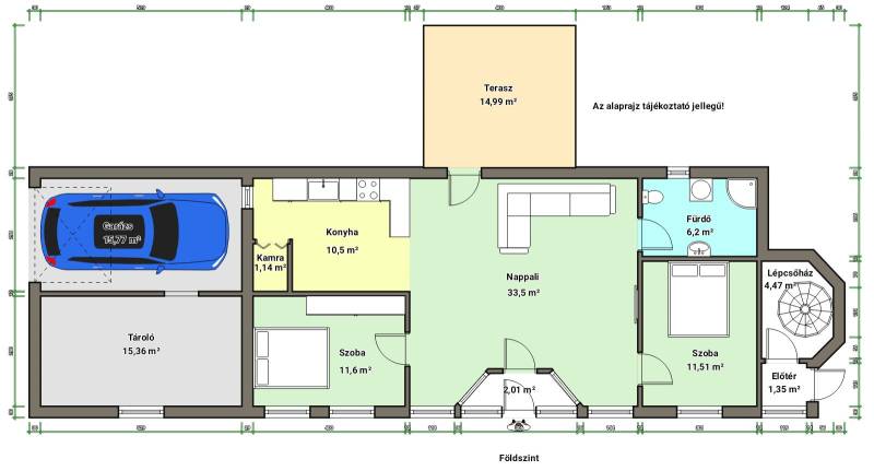
Ez a hirdetés kifejezetten nagy családosok számára készült, akik szeretnék megtalálni álmaik otthonát egy csendes, de központi elhelyezkedésű környéken. Jászfényszaru településen kínálunk eladásra egy frissen felújított, 148 négyzetméteres, 2 db KÜLÖN LAKRÉSSZEL rendelkező lakóingatlant, amely tökéletes választás lehet számodra és családod számára. Az ingatlan 395 négyzetméteres telken helyezkedik el, amely elegendő teret biztosít a pihenéshez és a szórakozáshoz.A házban 4 hálószoba található, így bőven van hely a család minden tagjának, vagy akár egy otthoni irodának is. Két fürdőszoba biztosítja a kényelmet a reggeli rohanásban, és a 15 négyzetméteres TERASZ ideális helyszín lehet a baráti összejövetelekhez vagy a nyári pihenéshez. Az ingatlan állapota kiváló, frissen felújított, így azonnal költözhető, ami különösen vonzó lehet az első vásárlók számára. Új KONDENZÁCIÓS gázkazánnal történő fűtése és légkondicionálása garantálja a kellemes hőmérsékletet az év minden szakában. Az önálló GARÁZS pedig egy autó kényelmes tárolását biztosít.A környék CSENDES, biztonságos, ahol a szomszédok barátságosak, és a gyermekek biztonságosan játszhatnak a szabadban. A helyi bolt, iskola és orvosi rendelő mind csupán néhány percre található, így a mindennapi teendőid gyorsan és egyszerűen megoldhatóak.Ez a tehermentes ingatlan egy REMEK LEHETŐSÉG, ha nem akarsz a felújítással bajlódni. További információért keress bizalommal. Otthon Start, CSOK Plusz és egyéb hitel ügyintézésében díjmentes segítséget nyújtunk.

További adatok

Telekterület: 395 m2
Kert mérete: 395 m2
Erkély mérete: 15 m2
Felszereltség: -
Parkolás: -
Kilátás: utcai
Egyéb extrák:  
-

Hirdető adatai

Hirdető neve: Ingatlanmentor powered by Rock Home
Kapcsolattartó: Horváth Tibor
Hirdető telefonszáma: +36 70 467 6871
Honlap: -

Üzenetet küldhet a hirdetőnek:
Az Ön neve:
Az Ön e-mail címe:
Üzenet: