Hajdú-Bihar megye, Debrecen


 

Hivatkozási szám: 3166017

Ingatlan adatai

Irányár: 850 000 Ft/hó
Típus: ház
Kategória: kiadó
Alapterület: 192 m2
Fűtés: gáz (cirko)
Állapota: -
Szobák száma: 6
Építés éve: 1992
Szintek száma: -

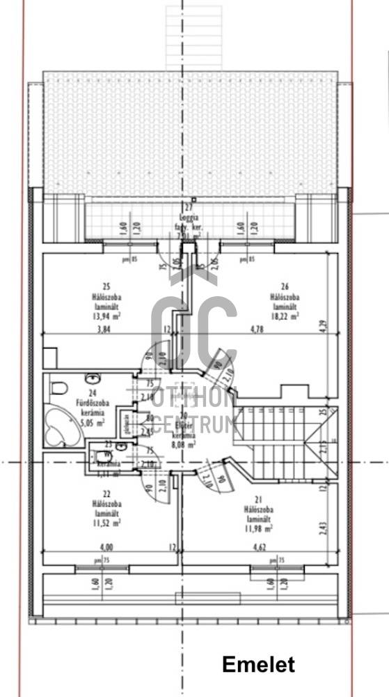
Részletes leírás

DEBRECEN – NAGYERDŐ PRÉMIUM RÉSZÉN KIADÓ TELJESEN FELÚJÍTOTT, NAPELEMES, MAGAS SZÍNVONALÚ CSALÁDI HÁZ EXTRA SZOLGÁLTATÁSOKKAL!Debrecen egyik legexkluzívabb és legkedveltebb városrészében, a Nagyerdő szívében kiadó egy teljes körűen felújított, bútorozott, napelemes családi ház, amely egyszerre kínál kényelmet, eleganciát és modern technológiát.Ez az ingatlan nem csupán egy otthon – hanem életminőség:a havi takarítás, TV- és internet-szolgáltatás, valamint a parkosított, gondozásmentes kert mind a bérleti díj része, így Önnek valóban csak a kényelmes mindennapokra kell figyelnie.Főbb jellemzők:Nettó lakótér: 192 m²Szuterén: 104 m²Építés éve: 1992 – Teljes felújítás 2023-banEnergiatakarékos 5 kW napelemrendszer + aggregátor6 szoba, 3 fürdőszoba, külön WCTágas nappali, világos, napfényes terek, nagy, fedett teraszModern, gépesített konyha, minőségi bútorokkalKamera- és riasztórendszerParkosított kert műfűvel, garázs + 3 parkolóhelyKiemelt szolgáltatások a bérleti díjban:- Havonta egy teljes körű, professzionális takarítás- TV- és internet-szolgáltatás- Parkoló használatEzek a szolgáltatások ritkaságnak számítanak bérlemény esetén – különösen ilyen színvonalú, teljesen felújított családi házban.Lokáció:A ház Debrecen Nagyerdő egyik legjobb utcájában található – csendes, zöldövezeti környezetben, mégis perceken belül elérhető a belváros, az egyetem, a klinikák és a főbb közlekedési útvonalak.A környék biztonságos, rendezett, és magas presztízsű lakókörnyezet jellemzi.Bérleti feltételek:Bérleti díj: 850.000 Ft / hóKaució: 2 havi bérleti díjMinimum bérleti idő: 1 évKisállat nem hozható, dohányzás nem megengedettAzonnal költözhető!Ez a ház ritka gyöngyszem Debrecen bérleti piacán:teljesen felújított, napelemes, biztonságos, tágas, világos, prémium felszereltségű otthon,amelyhez extra szolgáltatások is társulnak – mindez a Nagyerdő legszebb részén.Érdeklődj bizalommal – ilyen szintű bérlemény ritkán elérhető Debrecenben!

További adatok

Telekterület: 600 m2
Kert mérete: 600 m2
Erkély mérete: 32 m2
Felszereltség: -
Parkolás: -
Kilátás: -
Egyéb extrák:  
-

Hirdető adatai

Hirdető neve: Otthon Centrum
Kapcsolattartó: Szaszala Zsolt
Hirdető telefonszáma: +36 70 469 3681
Honlap: -

Üzenetet küldhet a hirdetőnek:
Az Ön neve:
Az Ön e-mail címe:
Üzenet: