Pest megye, Hernád


 

Hivatkozási szám: 3165888

Ingatlan adatai

Irányár: 34 900 000 Ft
Típus: ház
Kategória: eladó
Alapterület: 70 m2
Fűtés: elektromos
Állapota: új
Szobák száma: 3+1
Építés éve: 2026
Szintek száma: -

Részletes leírás

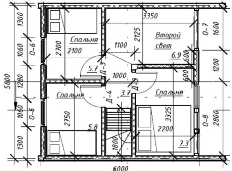
Hernádon, aszfaltozott, csendes utcában értékesítésre kínálok egy  könnyűszerkezetes 70 m2-es  családi házat.  A telek adottságaiból adódóan mérete a háznak: 6 méter széles  X  7 méter  hosszú.  Az alsó szinten amerikai konyha nappali, fürdőszoba található. Az emeleten pedig 3 hálószoba kapott helyet.  Az első szint 2,7 m, a tetőtéri parapetfal 1,2 m magas, a nappali  nyitott légtere kb. 6 m magas.   A közművek közül víz, villany, csatorna, gáz elérhető, beköttetésük a vevő feladata.  A fűtés elektromos infrapanelekkel, klímával megoldott, de külön megbeszélés szerint lehet más alternatíva is.  A telek 1800 m2-es.  Készpénzes ügyfeleknek eladó. A telek ára benne van az árban.  Megtelkinthető a telek:  06204004014

További adatok

Telekterület: 1 800 m2
Kert mérete: 1 800 m2
Erkély mérete: -
Felszereltség: -
Parkolás: -
Kilátás: -
Egyéb extrák:  
-

Hirdető adatai

Hirdető neve: Dabas Régió
Kapcsolattartó: Böszörményi Krisztina
Hirdető telefonszáma: 06204004014
Honlap: -

Üzenetet küldhet a hirdetőnek:
Az Ön neve:
Az Ön e-mail címe:
Üzenet: