Budapest, XIV.kerület


 

Hivatkozási szám: 3165671

Ingatlan adatai

Irányár: 180 900 000 Ft
Típus: ház
Kategória: eladó
Alapterület: 110 m2
Fűtés: egyéb
Állapota: felújítást igényel
Szobák száma: 3+2
Építés éve: -
Szintek száma: -

Részletes leírás

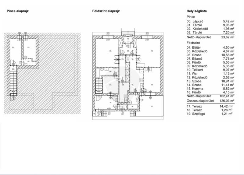
Csendes, zöldövezeti 2 generációs családi ház Zuglóban, a Gödöllői utcában ????Eladó XIV. kerület, Alsórákos egyik legkedveltebb utcájában egy 110 m²-es, tégla építésű, 2 generációs családi ház, 521 m²-es telken.✨ Főbb jellemzők:Alapterület: 110 m²Telek: 521 m²Szobák: 3 + 1 félszobaKonyha: 2 étkezős konyhaFürdőszobák: 2Építés éve: 1951Fűtés: gázcirkóSzerkezet: téglaTető: pala (tetőtér beépíthető)Belmagasság: 230 cmTájolás: délNyílászárók: fa (felújítandó állapotban)???? Leírás:A ház két külön bejáratú lakrészt kínál, külön villanyórákkal és fürdőkkel, így kiválóan alkalmas két generáció együttélésére vagy akár befektetésre.A nagy, napfényes terasz és a tágas, gondozott kert ideális helyszíne a pihenésnek és családi, baráti összejöveteleknek.A kertben fészer és fedett sütögetős rész is található.Az ingatlan lakható állapotú, de igény szerint felújítható, így az új tulajdonos saját ízlésére formálhatja.???? Környék:Nyugodt, zöldövezeti, csendes utca, jó szomszédság, családias hangulat.Mégis minden néhány perc sétával elérhető – buszmegálló, iskola, óvoda, bevásárlási lehetőségek a közelben.Kiváló közlekedés és gyors elérhetőség a belváros felé.

További adatok

Telekterület: 521 m2
Kert mérete: 521 m2
Erkély mérete: 16 m2
Felszereltség: -
Parkolás: -
Kilátás: udvari
Egyéb extrák:  
-

Hirdető adatai

Hirdető neve: Rock Home
Kapcsolattartó: Rusznák Zoltán
Hirdető telefonszáma: +36 70 412 5736
Honlap: -

Üzenetet küldhet a hirdetőnek:
Az Ön neve:
Az Ön e-mail címe:
Üzenet: