Pest megye, Törtel


 

Hivatkozási szám: 3165663

Ingatlan adatai

Irányár: 32 000 000 Ft
Típus: ház
Kategória: eladó
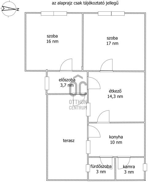
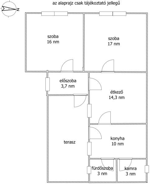
Alapterület: 67 m2
Fűtés: gáz (cirko)
Állapota: -
Szobák száma: 2
Építés éve: 1974
Szintek száma: -

Részletes leírás

Képzeld el, hogy egy csendes, zöldövezeti környezetben találod magad, ahol minden adott ahhoz, hogy megvalósítsd álmaid otthonát vagy befektetési lehetőségedet! Ez a használt ház Pest vármegye szívében, Törtel városában vár rád, ahol a nyugalom és a természet közelsége találkozik a modern életstílussal. Az ingatlan 67 nm alapterületű, két tágas szobával rendelkezik, ideális választás fiatal felnőttek számára, akik szeretnék élvezni a csendes, mégis élhető környezetet. A házhoz tartozik egy 974 nm-es telek, amely lehetőséget ad a bővítésre, így könnyedén alakíthatod a teret saját ízlésed szerint. A 12 nm-es terasz ideális helyszín a reggeli kávézáshoz vagy a barátokkal való összejövetelekhez, miközben a rendezett kertben a kisállatok is szabadon mozoghatnak. Az ingatlan tehermentes, így gyorsan költözhető, és az Otthon Start támogatás is elérhető, ami még vonzóbbá teszi a vásárlást. A ház fűtése gáz cirkóval és vegyes tüzelésű kazánnal, a hűtés pedig mennyezethűtéssel megoldott, így a klíma mindig kellemes lesz. A környék biztonságos és csendes, ideális a pihenésre és a feltöltődésre. A közlekedési lehetőségek is kiválóak: a buszmegálló csupán pár perc sétára található, így könnyedén elérheted a közeli városokat, vagy a fővárost is. Ez az ingatlan nem csupán egy ház, hanem egy lehetőség arra, hogy egy olyan otthont teremts magadnak, ahol a mindennapok örömteliek és kényelmesek lehetnek. Ha kérdéseid lennének, vagy szeretnéd megtekinteni ezt a gyönyörű ingatlant, bátran keresd bizalommal! Ne habozz, hiszen a piacon lévő ingatlanok gyorsan fogynak, és ez a lehetőség nem tart örökké!

További adatok

Telekterület: 974 m2
Kert mérete: 974 m2
Erkély mérete: 12 m2
Felszereltség: -
Parkolás: -
Kilátás: -
Egyéb extrák:  
-

Hirdető adatai

Hirdető neve: Otthon Centrum
Kapcsolattartó: Kozmané Zsiros Krisztina
Hirdető telefonszáma: +36 70 388 5436
Honlap: -

Üzenetet küldhet a hirdetőnek:
Az Ön neve:
Az Ön e-mail címe:
Üzenet: