Pest megye, Isaszeg


 

Hivatkozási szám: 3165185

Ingatlan adatai

Irányár: 96 000 000 Ft
Típus: ház
Kategória: eladó
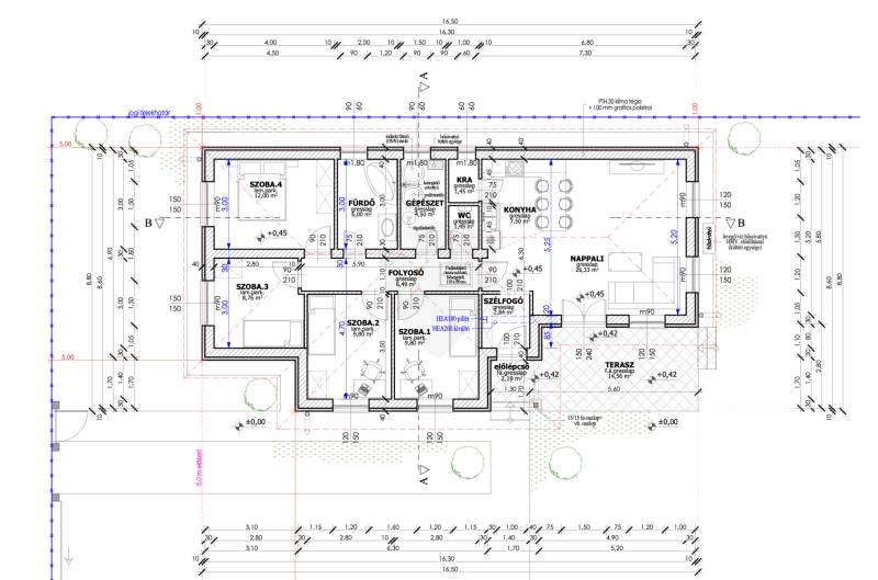
Alapterület: 97 m2
Fűtés: -
Állapota: új
Szobák száma: 5
Építés éve: 2025
Szintek száma: -

Részletes leírás

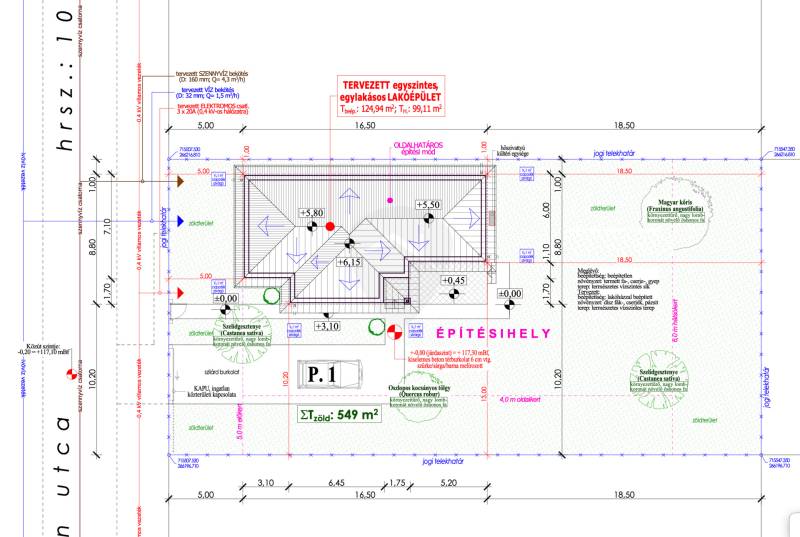
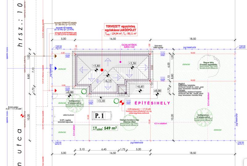
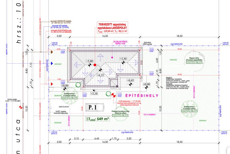
Eladó prémium családi ház a Csillagutcában, közvetlen erdőkapcsolattal!Egy modern, világos és prémium kivitelezésű otthont keres csendes, de jól frekventált környéken? Akkor ezt Önnek álmodtuk meg! Az új építésű, panorámás ingatlanunk egy nyugodt, biztonságos és kiváló infrastruktúrával rendelkező környezetben épül. A környéken túlnyomórészt új építésű házak találhatók, így garantáltan családbarát és exkluzív lakókörnyezetet biztosít.Megbízható kivitelezés, gyors átadás✔ Az építkezést egy nagy referenciával rendelkező helyi vállalkozó végzi✔ A szerződéskötés után azonnali kezdés✔ Kulcsrakész átadás 8 hónapon belülModern műszaki tartalom és energiatakarékos megoldások✔ Falazat: 37,5 viablok falazóelem✔ Szigetelés:✔ 25 cm födém szigetelés✔ Nyílászárók: Hat légkamrás, háromrétegű üvegezésű műanyag thermo ablakok✔ Tető: Antracit cserép✔ Elektromos kapu előkészítés✔ Fűtés: Levegő-víz hőszivattyúSzemélyre szabható belső térA burkolatok és a beltéri ajtók a vállalkozó által meghatározott összeghatárig választhatók:✔ Hidegburkolat: 7.000 Ft/m²✔ Melegburkolat: 7.000 Ft/m²✔ Beltéri ajtók: 70.000 Ft/db✔ Fürdőkád: 50.000 Ft✔ Csaptelepek: 25.000 Ft/dbMagasabb árkategóriájú termékek választására is van lehetőség!Kiváló lokáció, természetközeli környezet✔ Erdőkapcsolatos telek, számos zöldterület és park a közelben✔ Ideális választás természetkedvelőknek és nyugodt életet keresőknek✔ A városközpont könnyen elérhető, üzletek, éttermek és szolgáltatások pár percre✔ Az ingatlan CSOK+ képes!✔ Várható befejezés: 2026 nyárÉrdeklődjön most, és biztosítsa be álmai otthonát!Intor Ingatlan – Otthont biztonságban!✔ Teljes körű ingatlanszolgáltatás az első lépéstől az utolsóig✔ Segítünk az eladásban, vásárlásban, teljes körű ügyintézésben(Referenciaképek feltöltésre kerülnek, melyek az épülő tervház kész állapotát mutatják.)

További adatok

Telekterület: 800 m2
Kert mérete: 800 m2
Erkély mérete: -
Felszereltség: -
Parkolás: -
Kilátás: panorámás
Egyéb extrák:  
-

Hirdető adatai

Hirdető neve: Intor Ingatlan Powered By RH
Kapcsolattartó: Kollár Ábel Gergő
Hirdető telefonszáma: +36 70 412 5808
Honlap: -

Üzenetet küldhet a hirdetőnek:
Az Ön neve:
Az Ön e-mail címe:
Üzenet: