Pest megye, Kerepes


 

Hivatkozási szám: 3164951

Ingatlan adatai

Irányár: 119 900 000 Ft
Típus: ház
Kategória: eladó
Alapterület: 132 m2
Fűtés: -
Állapota: -
Szobák száma: 5
Építés éve: 2023
Szintek száma: -

Részletes leírás

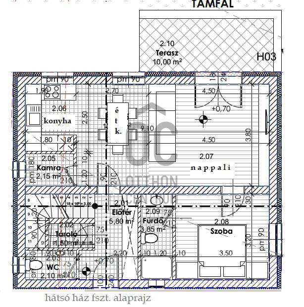
Teljesen kulcsrakész, ide csak a bútorait és ruháit hozza! Eladó Kerepesen, a Panoráma lakópark csendes részén egy nettó 132nm-es, belső kétszintes, akár 2 generációnak is alkalmas családi ház, melyhez tartozik egy hátsó terasz és kocsibeálló, valamint saját, lekerített telek. A telek még szépítésre kerül átadás előtt, mert a tulajdonos egy kívül-belül igényes ingatlant szeretne átadni. Megbeszélés esetén bútorok is maradhatnak.Az ingatlan 2023-as építésű.A ház már teljesen kész van: konyhabútorral, burkolatokkal, szaniterekkel, világítótestekkel. Főbb paraméterek:- hőszivattyús fűtés + padlófűtés minden helyiségben- klíma- biokandalló a nappaliban, mint kiegészítő fűtési lehetőség- a falak kimagasló hőszigetelő képességű Ytong téglából épültek- 10cm homlokzati szigetelés- tetőn cserépfedés- konyhabútor és konyhai nagygépek is beépítésre kerültek- 3x25 Amper- a világítótestek is beszerelésre kerültek- minőségi burkolatok- minőségi belső ajtók- minőségi nyílászárók 3 rétegű üvegezéssel és elektromos redőnnyelA ház korszerű és kiváló minőségű anyagokból, gondos tervezéssel, kiváló szakmai háttérrel készült.Az eladó felújítandó, pesti tégla lakást beszámíthat reális áron. megbeszélés szerint.Közelben található bölcsőde, óvoda, iskola, bevásárlása alkalmas üzletek sokasága: Aldi, Lidl, Penny, Spar, Auchan, Decathlon, Spar, Dm,Takko, Jysk, Pepco, Next Shop, éttermek, hentes, gyógyszertár, egészségközpont, posta, cukrászda, pékség, orvosi rendelő és ügyelet, valamint a Flór Ferenc Kórház.Kb. 10 perc sétával elérhető buszmegálló és a hévállomás. Autóval néhány perc alatt megközelíthető az M0-ás és az M3-as autópálya.Hívjon bizalommal a hét bármely napján!

További adatok

Telekterület: 380 m2
Kert mérete: 380 m2
Erkély mérete: 15 m2
Felszereltség: -
Parkolás: -
Kilátás: -
Egyéb extrák:  
-

Hirdető adatai

Hirdető neve: Otthon Centrum
Kapcsolattartó: dr. Molnár Beatrix
Hirdető telefonszáma: +36 70 469 3196
Honlap: -

Üzenetet küldhet a hirdetőnek:
Az Ön neve:
Az Ön e-mail címe:
Üzenet: