Hajdú-Bihar megye, Debrecen


 

Hivatkozási szám: 3164822

Ingatlan adatai

Irányár: 138 000 000 Ft
Típus: ház
Kategória: eladó
Alapterület: 86 m2
Fűtés: -
Állapota: -
Szobák száma: 4
Építés éve: 2002
Szintek száma: -

Részletes leírás

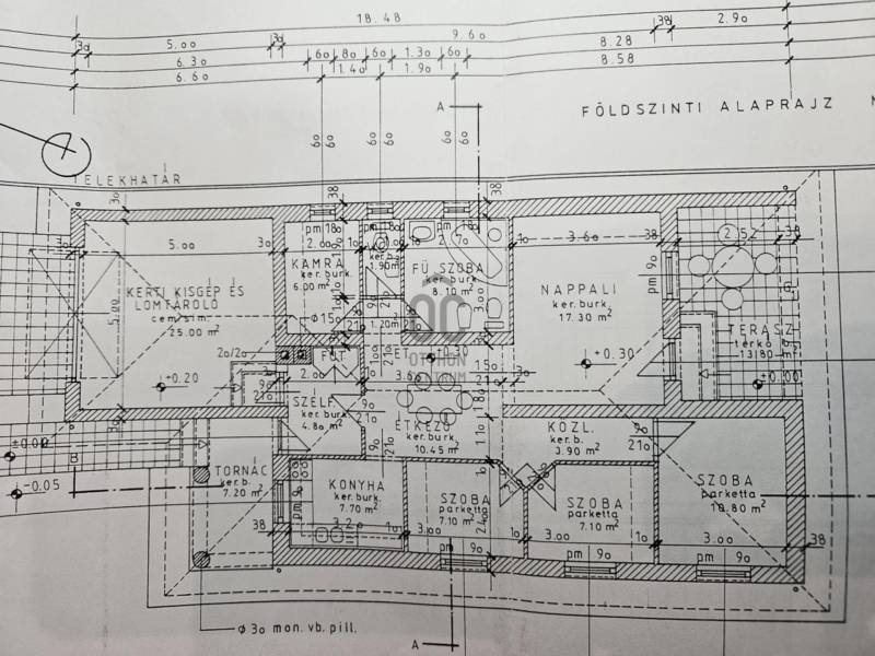
Eladásra kínálok egy igényesen karbantartott,38-as téglából épült,10cm hőszigeteléssel ellátott családi házat , 601 négyzetméteres telken.A tágas világos helyiségek és a praktikus elrendezés kényelmes otthont biztosítanak akár nagyobb család számára is.A nappali és a 3 külön nyíló szoba kényelmes életteret biztosít.Az otthon gázfűtéssel és hőszivattyús fűtéssel,valamint napelemmel rendelkezik, így a fentertási kőltségek rendkívül alacsonyak.A telken 2 fúrt kút van, öntözőrendszer és csapdékvíz -tároló is megtalálható, így a kert gondozása egyszerű és takarékos.A kertben főzési lehetőség biztosított, a terasz pedig ideális pihenéshez, kávézáshoz családi összejövetelekhez.A házban egy tágas fürdőszoba található , sarokkáddal zuhanyzóval és wc-vel, valamint egy különálló wc is.Az ingatlan rendezett környezetben, csendes utcában található, családok számára ideális választás.Közelben iskola, óvoda, bölcsőde, boltok , valamint tömegközlekedésre is van lehetőség.Ha felkeltettem az érdeklődését várom hívását a hét minden napján!

További adatok

Telekterület: 601 m2
Kert mérete: 601 m2
Erkély mérete: 14 m2
Felszereltség: -
Parkolás: -
Kilátás: -
Egyéb extrák:  
-

Hirdető adatai

Hirdető neve: Otthon Centrum
Kapcsolattartó: Füzesiné Nagy Tünde
Hirdető telefonszáma: +36 70 388 5731
Honlap: -

Üzenetet küldhet a hirdetőnek:
Az Ön neve:
Az Ön e-mail címe:
Üzenet: