Győr-Moson-Sopron megye, Enese


 

Hivatkozási szám: 3164766

Ingatlan adatai

Irányár: 78 900 000 Ft
Típus: ház
Kategória: eladó
Alapterület: 90 m2
Fűtés: gáz (cirko)
Állapota: új
Szobák száma: 4
Építés éve: 2025
Szintek száma: -

Részletes leírás

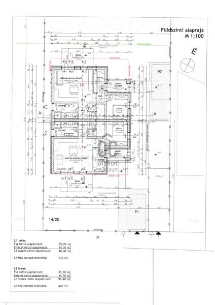
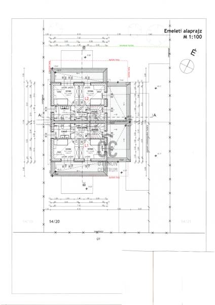
Költözzön be akár idén karácsonyra!Enesén, Győrtől 17 km-re új építésű, modern ikerház várja Önt és családját. Az ingatlan 90,4 négyzetméteres alapterülettel rendelkezik két szinten, amelyet gondosan megterveztek, hogy a kényelmet és a funkcionalitást ötvözze. A házban nappali plusz 3 szoba található és két fürdőszoba, egyik tusolóval a másik káddal. Helyet kapott még háztartási helyiség is az épületben.A ház téglából épült 15 cm szigeteléssel. Fűtéséről gáz cirkó rendszer gondoskodik PADLÓFŰTÉSES HŐLEADÁSSAL. Nyílászárók 3 rétegű műanyagok.Az ár kulcsrakész kivitelezést tartatlmazza! Illetve a nappaliba egy hűtő-fűtő klímát. Beépített, gépesített konyha + nappali bútor: 3,5 M FtEz az a ház ahová ténylegesen azonnal betudsz költözni a személyes dolgaiddal! Már akár a karácsonyt is ott töltheted, hisz már a belső burkolás van folyamatban!Az telek mérete 235 négyzetméteres a terasz 11,66 nm.A település jól megközelíthető autóval, hiszen a közeli főbb közlekedési útvonalak könnyedén elérhetők (M85). A tömegközlekedés is kedvező, a buszjáratok rendszeresen közlekednek, így a közeli városok, például Győr, gyorsan és egyszerűen elérhetők.Ne habozzon, ez az ingatlan valóban különleges, és biztos vagyok benne, hogy Ön is beleszeret!Összesen 5 db ház eladó, 4 db iker és egy önálló családiház! Kérem érdeklődjön telefonon.Hitelre van szüksége? Tudunk segíteni!Az Otthon Centrum az ország egyik legnagyobb és legmegbízhatóbb hitelközvetítőjeként, teljes körű és díjmentes hitelügyintézéssel, biztosításkötéssel áll rendelkezésére!Kérje személyre szabott ajánlatunkat Kollégáinktól!

További adatok

Telekterület: 235 m2
Kert mérete: 235 m2
Erkély mérete: 12 m2
Felszereltség: -
Parkolás: -
Kilátás: -
Egyéb extrák:  
-

Hirdető adatai

Hirdető neve: Otthon Centrum
Kapcsolattartó: Pingiczer Anett
Hirdető telefonszáma: +36 70 716 8106
Honlap: -

Üzenetet küldhet a hirdetőnek:
Az Ön neve:
Az Ön e-mail címe:
Üzenet: