Szabolcs-Szatmár-Bereg megye, Kisvarsány


 

Hivatkozási szám: 3164721

Ingatlan adatai

Irányár: 27 000 000 Ft
Típus: ház
Kategória: eladó
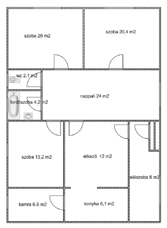
Alapterület: 116 m2
Fűtés: gáz (cirko)
Állapota: -
Szobák száma: 3
Építés éve: 1980
Szintek száma: -

Részletes leírás

Fedezze fel ezt a különleges lehetőséget Kisvarsányban, ahol egy tágas, nettó 116 m2-es családi ház várja új tulajdonosát. Az ingatlan egy 2337 négyzetméteres telken helyezkedik el, amely lehetőséget biztosít a kertészkedésre . A három szobás elrendezés ideális családok számára, akik kényelmes, mégis praktikus otthont keresnek. A fürdőszoba jól felszerelt, így a mindennapi élet kényelmét szolgálja. A ház állapota jó, a gáz cirkó fűtés pedig biztosítja a kellemes hőmérsékletet a hideg téli hónapokban is. A környék csendes és biztonságos, ami ideális helyszínt biztosít a családi élethez. A közeli buszmegállókból rendszeres járatok indulnak a környező települések irányába, így a napi ingázás sem jelenthet problémát. A házhoz tartozik egy három autó számára elegendő épület is, ami különösen előnyös lehet a családok számára, akiknek több járművük van. Az ingatlan elhelyezkedése lehetőséget kínál a csendes vidéki élet élvezetére, miközben a pár kilóméterre lévő város előnyeit is könnyedén élvezheti. Ne habozzon, ha kérdései lennének, vagy szeretné megtekinteni ezt a kivételes ingatlant. Az ingatlan egyedülálló lehetőséget kínál, amelyet érdemes kihasználni!

További adatok

Telekterület: 2 337 m2
Kert mérete: 2 337 m2
Erkély mérete: -
Felszereltség: -
Parkolás: -
Kilátás: -
Egyéb extrák:  
-

Hirdető adatai

Hirdető neve: Otthon Centrum
Kapcsolattartó: Gyöngyösi Sándor
Hirdető telefonszáma: +36 70 469 3486
Honlap: -

Üzenetet küldhet a hirdetőnek:
Az Ön neve:
Az Ön e-mail címe:
Üzenet: