Pest megye, Makád


 

Hivatkozási szám: 3164244

Ingatlan adatai

Irányár: 140 000 000 Ft
Típus: ház
Kategória: eladó
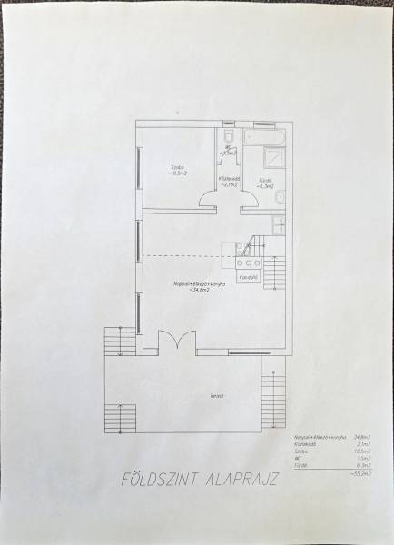
Alapterület: 79 m2
Fűtés: gáz (cirko)
Állapota: -
Szobák száma: 4
Építés éve: 1995
Szintek száma: -

Részletes leírás

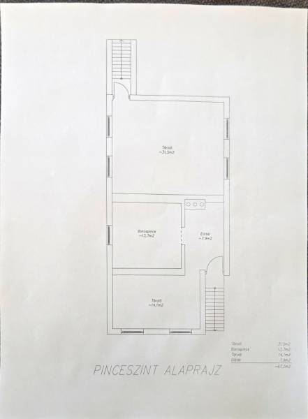
Eladó Makád egyik legszebb, csendes részén ez a 404 nm-es telken fekvő, 79 nm-es, jól karbantartott családi ház, amely tökéletes választás lehet állandó lakhatásra vagy hétvégi nyaralónak egyaránt!A három szobás, amerikai konyhás nappalival rendelkező otthon ideális elrendezésű, tágas és világos terekkel várja új tulajdonosát. A kandalló meghitt hangulatot biztosít a hűvösebb napokon, míg a hűtő-fűtő klíma és a gázcirkó fűtés gondoskodik a kényelmes hőmérsékletről egész évben. A meleg vizet villanybojler szolgáltatja.A házhoz saját stég tartozik, ami tökéletes horgászathoz, csónakázáshoz, vagy csak a természet közelségének élvezetéhez. A kert öntözése a fúrt kútról könnyedén megoldható. További extrák: 2 pincehelyiség, melyek ideálisak tárolásra vagy akár borospincének is.Főbb jellemzők:404 nm telek79 nm lakótér3 szoba + amerikai konyhás nappaliSaját stégKandalló, gázcirkó, klímaVillanybojleres meleg vízFúrt kút öntözéshez2 pinceHa egy olyan helyet keres, ahol a természet közelsége, a vízparti élmények és a komfortos otthon kéz a kézben jár, ne keressen tovább – ez az ingatlan Önre vár!

További adatok

Telekterület: 404 m2
Kert mérete: 404 m2
Erkély mérete: 16 m2
Felszereltség: -
Parkolás: -
Kilátás: -
Egyéb extrák:  
-

Hirdető adatai

Hirdető neve: Otthon Centrum
Kapcsolattartó: Szerencsi Enikő
Hirdető telefonszáma: +36 70 716 8441
Honlap: -

Üzenetet küldhet a hirdetőnek:
Az Ön neve:
Az Ön e-mail címe:
Üzenet: