Heves megye, Hatvan


 

Hivatkozási szám: 3163544

Ingatlan adatai

Irányár: 25 000 000 Ft
Típus: lakás (tégla)
Kategória: eladó
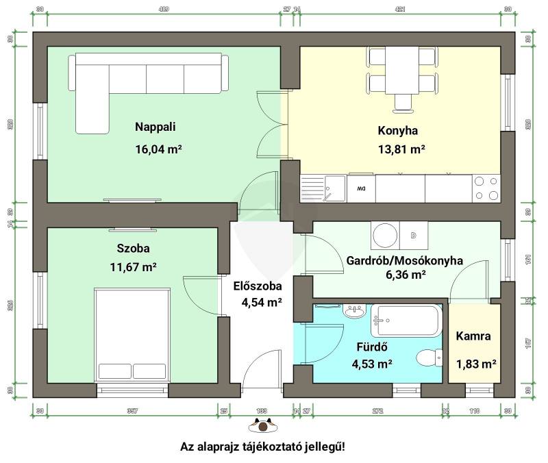
Alapterület: 59 m2
Fűtés: -
Állapota: felújítást igényel
Szobák száma: 2
Építés éve: 1960
Szintek száma: -

Részletes leírás

Új-Hatvan KERTVÁROSI részén közel a központhoz kínálok eladásra egy nettó 59 m2-es befejezésre váró társasházi lakást. A nagy ELŐNYE, hogy 3 lakásos társasházban található, illetve egy saját kb. 100 m2-es kertrész, tárolóval, pincével és egy FEDETT KOCSIBEÁLLÓVAL (felújításra szorul) várja az új tulajdonosát.A teljes villanyvezeték rendszer KORSZERŰSÍTVE lett. Az egész éves kellemes hőmérsékletről minőségi GREE hűtő-fűtő KLÍMÁK gondoskodnak. A nyílászárók korszerűsítése megtörtént, illetve a lakás nagy része vízszigetelést kapott (lemez és injektálás technikával).Közelben kb. 100-200 méteren belül található az óvoda, iskola, egyéb közintézmények, posta, üzletek stb.. Szintén karnyújtásnyira található egy pár éve kivitelezett közösségi park, mesterséges tóval.A helyi járat buszmegállója az épület előtt található, az autóbusz pályaudvar, illetve a vasútállomás pedig 5 perc kellemes séta alatt elérhető. Budapest 1 órán belül megközelíthető bármilyen eszközzel.Ha számodra fontos az autód biztonsága és szeretnéd a saját igényed szerint kialakítani az otthonod, akkor ez egy remek lehetőség számodra. Megtekintésért és további információért hívj bizalommal!

További adatok

Telekterület: -
Kert mérete: -
Erkély mérete: -
Felszereltség: -
Parkolás: -
Kilátás: utcai
Egyéb extrák:  
-

Hirdető adatai

Hirdető neve: Ingatlanmentor powered by Rock Home
Kapcsolattartó: Horváth Tibor
Hirdető telefonszáma: +36 70 467 6871
Honlap: -

Üzenetet küldhet a hirdetőnek:
Az Ön neve:
Az Ön e-mail címe:
Üzenet: