Heves megye, Hatvan


 

Hivatkozási szám: 3163539

Ingatlan adatai

Irányár: 54 500 000 Ft
Típus: ház
Kategória: eladó
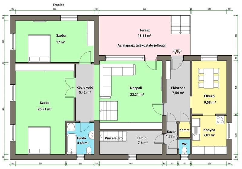
Alapterület: 110 m2
Fűtés: egyéb
Állapota: -
Szobák száma: 3
Építés éve: 1978
Szintek száma: -

Részletes leírás

Fontos a családod számára a KÉNYELEM és a FELKAPOTT, JÓ KÖRNYÉK? Akkor ezt a lehetőséget ne hagyd ki! Nézd meg mihamarabb!Új-Hatvanban a BOSCH-hoz közel kínálok eladásra egy 1978-ben TÉGLÁBÓL épült, szinteltolásos, nettó 110 m2-es lakrésszel és 52 m2-es szuterénnel rendelkező családi házat. A telek összközművesített. Az épület alatti GARÁZS 1 db autó számára biztosít parkolást. Az ingatlanban 2 külön bejáratú szoba + tágas nappali, fürdőszoba, konyha és egy étkező garantálja KÉNYELMET. Kis átalakítással kialakítható a 3 hálószoba. A fűtésről gázkazán és egy vegyestüzelésű kazán gondoskodik. Az elmúlt pár évben az összes nyílászáró korszerűsítve lett FA HŐSZIGETELT ABLAKOKRA. 380V Ipari áram van és 3x16 amper.A KERT 568 m2 alapterülettel rendelkezik, ezáltal könnyen rendben tartható, ha kevés idő maradna a fenntartására. Locsolásáról fúrt kút gondoskodik.Az ingatlan környezete közkedvelt, jó szomszédokkal rendelkezik. A környék autóval és tömegközlekedéssel is jól megközelíthető, az M3-as autópálya 5 percre található, ezáltal BUDAPEST kb. 30-40 perc alatt elérhető. A közelben számos üzlet, iskola, óvoda, játszótér, bevásárlóközpont és munkalehetőség is megtalálható.Az ingatlan TEHERMENTES, azonnal költözhető kifizetés után, illetve térképileg is rendezett, így CSOK Plusz és Otthon START hitelügyintézés szempontjából is megfelel, amelynek elintézésében segíteni tudunk. Ez a családi ház egy REMEK LEHETŐSÉG lehet a számotokra az igény szerinti felújítás után!Ha további kérdése van az ingatlannal kapcsolatban, kérjük, ne habozzon felvenni velünk a kapcsolatot.

További adatok

Telekterület: 568 m2
Kert mérete: 568 m2
Erkély mérete: 15 m2
Felszereltség: -
Parkolás: -
Kilátás: utcai
Egyéb extrák:  
-

Hirdető adatai

Hirdető neve: Ingatlanmentor powered by Rock Home
Kapcsolattartó: Horváth Tibor
Hirdető telefonszáma: +36 70 467 6871
Honlap: -

Üzenetet küldhet a hirdetőnek:
Az Ön neve:
Az Ön e-mail címe:
Üzenet: