Hajdú-Bihar megye, Debrecen


 

Hivatkozási szám: 3163301

Ingatlan adatai

Irányár: 1 000 000 Ft/hó
Típus: lakás (újépítésű)
Kategória: kiadó
Alapterület: 107 m2
Fűtés: gáz (cirko)
Állapota: új
Szobák száma: 4
Építés éve: 2024
Szintek száma: -

Részletes leírás

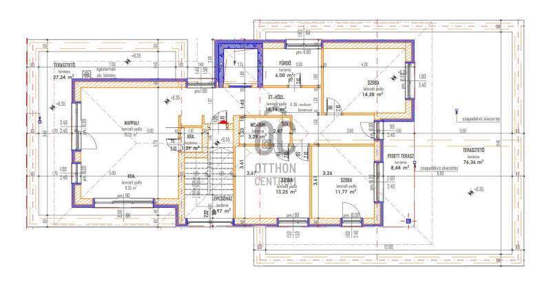
Debrecenben a Nagyerdő mellett a Nyulas városrészén, új építésű lakóparkban, újonnan épült, társasház nappali+ 3 hálószobás Penthouse lakása kiadó.Minőségi kivételezés mellett nagy hangsúly kerül az esztétikus megjelenésre is.Társasház paraméterei:- frekventált elhelyezkedés, elegáns környezet- lifttel rendelkezik,- 6 lakásos kis lakóközösség- teremgarázs az alsó szinten- közös társasházi kert kerül kialakításra- fűthető gépkocsi felhajtóA lakás paraméterei:- igazi luxus életérzés, egyedüli lakás a 2. emeleten, ezért Ön élvezheti otthonában a közvetlen lift kapcsolatot, melyet csak a jogosutak használhatnak- 98 nm hasznos alapterülethez tartozik 9 nm fedett terasz és 104 nm - s panorámás tetőterasz- terasszal közvetlen kapcsolatos, tágas világos nappali étkezővel és konyhával- 3 hálószoba melyből egy saját fürdőszobával rendelkezik, kettő pedig közvetlen kijárattal a teraszra- külön fürdőszoba káddal, zuhanyzóval- magas minőségű, hidegburkolatok a lakás minden részén- 3 rétegű hőszigetelt műanyag nyílászárók, melyek motoros alumínium redőnnyel és rovarhálóval lettek ellátva- padló fűtés az egész lakásban mely gázkazánról üzemel,- hűtés és kiegészítő fűtési lehetőséget a 4 db GREE hűtő-fűtő klíma melyhez H- tarifa tartozik- modern megoldások a mennyezeti világítás kialakításánál- telefonról is vezérelhető motoros alumínium redőnyök- a terasz száraz burkolattal ellátott, kiváló vízelvezetési megoldás.Ugye máris birtokba venné, ne habozzon hívjon és nézze meg személyesen!Szerződéskötéshez: 2 havi kaució és egy havi lakbér szükséges.Debrecen, Kiadó, Luxus, penthouse, terasz, erkély, lakás, bútor, új, prémium,

További adatok

Telekterület: -
Kert mérete: -
Erkély mérete: 112 m2
Felszereltség: -
Parkolás: -
Kilátás: kertre néző
Egyéb extrák:  
-

Hirdető adatai

Hirdető neve: Otthon Centrum
Kapcsolattartó: Vécseiné Uri Erzsébet
Hirdető telefonszáma: +36 70 388 5001
Honlap: -

Üzenetet küldhet a hirdetőnek:
Az Ön neve:
Az Ön e-mail címe:
Üzenet: