Hajdú-Bihar megye, Téglás


 

Hivatkozási szám: 3163072

Ingatlan adatai

Irányár: 75 500 000 Ft
Típus: ház
Kategória: eladó
Alapterület: 93 m2
Fűtés: gáz (cirko)
Állapota: új
Szobák száma: 4
Építés éve: 2025
Szintek száma: -

Részletes leírás

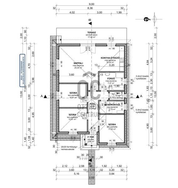
Új építésű, modern családi házat keres egy nyugodt, de dinamikusan fejlődő környéken? Téglás kertvárosi részén, egy új házakkal beépülő utcában várja Önt egy korszerű, energiatakarékos otthon, amely 2026 tavaszán már birtokba vehető.Az egyszintes, 93 m²-es családi ház átgondolt alaprajzzal készül:- tágas nappali (25 m²)- külön konyha-étkező (10,8 m²)- három kényelmes hálószoba- fürdőszoba és külön WC- praktikus mosókonyhaA nappali közvetlen kijárattal kapcsolódik a 17 m²-es teraszhoz, amely a mindennapok kényelmét szolgálja. A 603 m²-es telek bőséges lehetőséget kínál kert, játszótér vagy pihenőterület kialakítására.Korszerű, energiatakarékos megoldások:- gáz-cirkós fűtés padlófűtéssel- 4 db hőszivattyús klíma (a nappaliban és mindhárom hálószobában)- 3 rétegű hőszigetelt nyílászárók, elektromos redőnyök- 15 cm vastag szigetelés, amely alacsony rezsit garantál- 6 kW napelem rendszer a fenntartható energiaellátásért, inverterrel 11kW-ig fejleszhető- 2,7 méteres belmagasság, amely világos és tágas tereket biztosít- két autó beállási lehetősége a telken belülEz az otthon hosszú távon kényelmes, fenntartható és biztonságos választás, egy olyan utcában, ahol sorra épülnek az új házak, így egy egészen új, barátságos lakókörnyezet formálódik.Ha Ön is egy új, alacsony fenntartású és korszerű otthont szeretne Téglás egyik leggyorsabban fejlődő utcájában, keressen minket bizalommal a részletekért!

További adatok

Telekterület: 600 m2
Kert mérete: 600 m2
Erkély mérete: 17 m2
Felszereltség: -
Parkolás: -
Kilátás: -
Egyéb extrák:  
-

Hirdető adatai

Hirdető neve: Otthon Centrum
Kapcsolattartó: Dankos Andrea
Hirdető telefonszáma: +36 70 388 6031
Honlap: -

Üzenetet küldhet a hirdetőnek:
Az Ön neve:
Az Ön e-mail címe:
Üzenet: