Pest megye, Nagytarcsa


 

Hivatkozási szám: 3162993

Ingatlan adatai

Irányár: 114 990 000 Ft
Típus: ház
Kategória: eladó
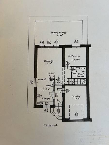
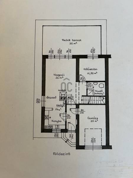
Alapterület: 160 m2
Fűtés: gáz (cirko)
Állapota: -
Szobák száma: 5
Építés éve: 2002
Szintek száma: -

Részletes leírás

Képzelje el, hogy egy csendes, forgalomtól mentes utcában ébred, madárcsicsergésre, saját kertre néző teraszon kortyolja a reggeli kávét… és mindezt Budapesttől alig pár percre!Nagytarcsán, kiváló állapotú, kétszintes, klímás ikerházfél keresi új tulajdonosát.A 2002-ben épült ingatlan masszív, 38 cm-es Porotherm téglából épült, 5 cm-es hőszigeteléssel. A korszerű nyílászárók, gáz-cirkó (padlófűtés) és kandalló gondoskodnak a kényelmes, meleg otthonról minden évszakban.Elrendezése praktikus és családbarát:- földszint: amerikai konyhás nappali, hálószoba, fürdőszoba, garázs- emelet: 3 külön nyíló hálószoba, külön WC és fürdő- 3 klíma (2 fent, 1 lent), gyönyörű kandalló- teljesen felszerelt konyha + beépített szekrények az árban- kerti tároló- sütögetőA 486 nm-es, gondozott kert tökéletes helyszíne a családi programoknak és baráti összejöveteleknek. A fedett terasz még a hidegebb hónapokban is használható – a téli ponyvának köszönhetően akár 10 fokos különbséget is érezhetünk.A környék csendes, biztonságos, szinte kizárólag új építésű házak övezik, és 4-5 évig nem várható újabb építkezés.Közel van minden, ami számít:Buszmegálló: 15 perc sétaBolt, iskola, óvoda, bölcsőde: pár percreSportpark, teniszpálya, játszótér: szórakozáshoz, kikapcsolódáshozTökéletes választás családosoknak vagy ingázóknak, akik közel szeretnének maradni Budapesthez, mégis nyugodt környezetre vágynak.Jöjjön el, nézze meg, és tegyen ajánlatot még ma!

További adatok

Telekterület: 486 m2
Kert mérete: 486 m2
Erkély mérete: 32 m2
Felszereltség: -
Parkolás: -
Kilátás: -
Egyéb extrák:  
-

Hirdető adatai

Hirdető neve: Otthon Centrum
Kapcsolattartó: Schadl Regina
Hirdető telefonszáma: +36 70 388 5151
Honlap: -

Üzenetet küldhet a hirdetőnek:
Az Ön neve:
Az Ön e-mail címe:
Üzenet: