Somogy megye, Siófok


 

Hivatkozási szám: 3162116

Ingatlan adatai

Irányár: 169 000 000 Ft
Típus: lakás (újépítésű)
Kategória: eladó
Alapterület: 80 m2
Fűtés: -
Állapota: új
Szobák száma: 3
Építés éve: 2026
Szintek száma: -

Részletes leírás

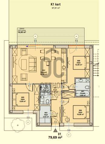
-Alapterület: 79,69m2-Terasz területe: 16m2- Kizárólagos kerthasználat: 97,81m2- + 1 felszíni gépkocsi beálló- Ennek a földszinti lévő 1-es lakás fűtési-, hűtési energiaigényét egyedi hőszivattyúval fedezzük. A hő leadó rendszerek falra szereltek Fan-coil rendszerűek, vizes rendszerű padlófűtéssel kiegészítve.- Az üvegezés három rétegű fokozottan hőszigetelt.- A beltéri ajtók egyedi, lapra szerelt nyílászárók lesznek.- A teraszon csúszásmentes burkolat készül fagyálló ragasztóval. - Az udvaron viacolor burkolat lesz.Ha ajánlatunk felkeltette érdeklődését, kérem, forduljon hozzánk bizalommal!Projekt bemutatásaÉlj Siófokon! - Sóstói lakások- prémium minőség:Siófok kedvelt Sóstó városrészében új építésű lakásokat ajánlok figyelmetekbe: prémium minőségben 2026-06-30-i átadással! Kiváló lokáció, magas műszaki tartalom!2025-2026-ban megépülő új, 7 lakásos lakóépület lakásait kínálom megvételre. A ,, Blue lake \" elnevezés a csodálatos Balaton közelségére utal.A társasházról:Siófok kedvelt Sóstó városrészében eladó 7 új építésű társasházi lakás. A társasház tégla falazatú, homlokzata hőszigetelt, fűtése-hűtése, melegvíz-ellátás H-tarifával támogatott hőszivattyúról megoldott, melynek hőleadója padlófűtés, illetve mennyezeti hűtés. A ház a mai kor elvárásainak megfelelően természetesen MEDENCÉS.A projekt keretében 3 földszinti, 3 I. emeleti és egy II. emeleti loft lakás került kialakításra. Az üdülő övezet új építésű egységes épített környezete biztonságot ad.A jól átgondolt koncepcióhoz modern kivitelezés társul – az épület kertre néző, nem az az utcafrontra, így biztosítva a kilátást minden lakásból a ligetes környékre, ahol már érezhető a Balaton közelsége. A földszinti lakások közül 2 kertkapcsolatos, az emeleti lakások pedig erkélyesek. Az épület közelsége a Balatonhoz 800 méter,10 perc sétával minden évszakban könnyen megközelíthető a Balaton part.A társasházban található lakástípusok minden igénynek megfelelő kialakítással bírnak. A földszinten kertkapcsolatos, az 2. emeleti zárószinten pedig nagy teraszos és tágas loft lakás várja tulajdonosát.Szintenként minden lakástípus fellelhető: A kis lakások kedvelői számára stúdió lakás, nappali+1 hálós kialakítás lehet ideális, de ugyanígy elérhető nagyobb, akár három hálószobás családbarát változat is. Fontos kihangsúlyozni, hogy a kényelem és funkcionalitás egyaránt fontos maradt. A loft lakások egyik legjobb tulajdonsága, hogy az ablakok óriásiak, így a nyitott elrendezéssel együtt rendkívül fényes az élettér.A lakások mellé megvásárolható parkolók és tárolók a ház délnyugati oldalán kerültek elhelyezésre.5 nyitott beálló kapcsolódik az épülethez.A lakások belső műszaki felszereltsége megfelel a mai követelményeknek és kényelmi elvárásoknak. A hőszivattyús hűtő-fűtő berendezés egy már jól bevált, energetikailag kifejezetten modern megoldás, mely télen és nyáron is kellemes hőérzetet biztosít és akár távolról is vezérelhető. A lakásokban padlófűtés ill. mennyezeti hűtés kerül kiépítésre, szabályzásuk 1 db termosztáttal megoldott, mely a műszaki tartalom részét képezi.Mindenképpen vonzerőnek számít az a zárt terület, mely kizárólag ehhez a társasházhoz tartozik, medencével.

További adatok

Telekterület: -
Kert mérete: -
Erkély mérete: 16 m2
Felszereltség: -
Parkolás: -
Kilátás: kertre néző
Egyéb extrák:  
-

Hirdető adatai

Hirdető neve: Otthon Centrum
Kapcsolattartó: Takács Anna
Hirdető telefonszáma: +36 70 461 9421
Honlap: -

Üzenetet küldhet a hirdetőnek:
Az Ön neve:
Az Ön e-mail címe:
Üzenet: