Hajdú-Bihar megye, Debrecen


 

Hivatkozási szám: 3161054

Ingatlan adatai

Irányár: 159 000 000 Ft
Típus: ház
Kategória: eladó
Alapterület: 127 m2
Fűtés: -
Állapota: -
Szobák száma: 4
Építés éve: 2019
Szintek száma: -

Részletes leírás

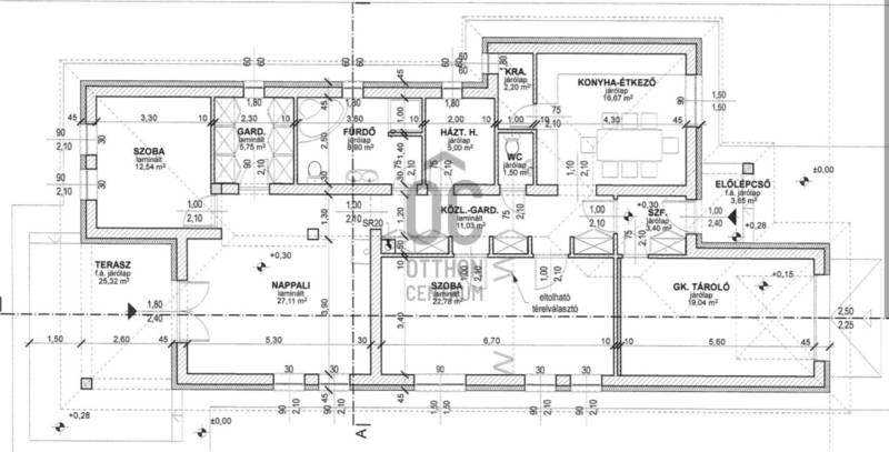
Barackvirág Lakópark – prémium családi ház eladó!Debrecen egyik legkedveltebb és legszebb lakóparkjában, a Barackvirág lakóparkban kínálok megvételre egy bruttó 187 m²-es, 2019-ben épült családi házat, 866 m²-es, igényesen kialakított telken. A ház elosztása:-előszoba- tágas nappali + 3 hálószoba- étkező-konyha + kamra- fürdőszoba + WC- vendég mosdó - gardrob, háztartási helyiség- 19 m²-es terasz- 19 m²-es garázsMűszaki és kényelmi felszereltség:- tégla falazat, 15 cm homlokzati szigetelés- 45 cm födémszigetelés- 3 rétegű hő- és hangszigetelt nyílászárók, alumínium redőnyökkel és szúnyoghálóval- elektromos garázskapu- elektromos kapu előkészítés- kiépített riasztórendszer- Panasonic hőszivattyú, mennyezethűtés, padlófűtés- medence fűtés előkészítéssel- fúrt kútKülső adottságok:- térkövezett, gondozott kert- kerti filagória- oldalkerítés és utcafronti kerítésEz a ház kiváló választás mindazoknak, akik modern, energiatakarékos otthont keresnek egy csendes, családias, mégis frekventált környezetben, Debrecen egyik legdinamikusabban fejlődő részén. Amennyiben felkeltette érdeklődését, keressen bizalommal, és egyeztessünk időpontot a személyes megtekintésre!

További adatok

Telekterület: 866 m2
Kert mérete: 866 m2
Erkély mérete: 28 m2
Felszereltség: -
Parkolás: -
Kilátás: -
Egyéb extrák:  
-

Hirdető adatai

Hirdető neve: Otthon Centrum
Kapcsolattartó: Takács-Sós Fanni
Hirdető telefonszáma: +36 70 469 3351
Honlap: -

Üzenetet küldhet a hirdetőnek:
Az Ön neve:
Az Ön e-mail címe:
Üzenet: