Veszprém megye, Zánka


 

Hivatkozási szám: 3159908

Ingatlan adatai

Irányár: 149 990 000 Ft
Típus: ház
Kategória: eladó
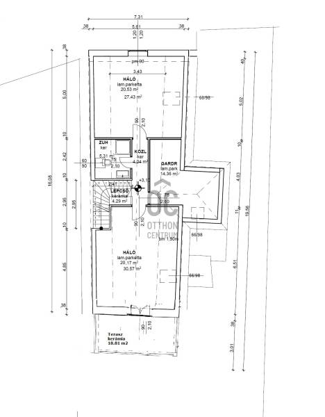
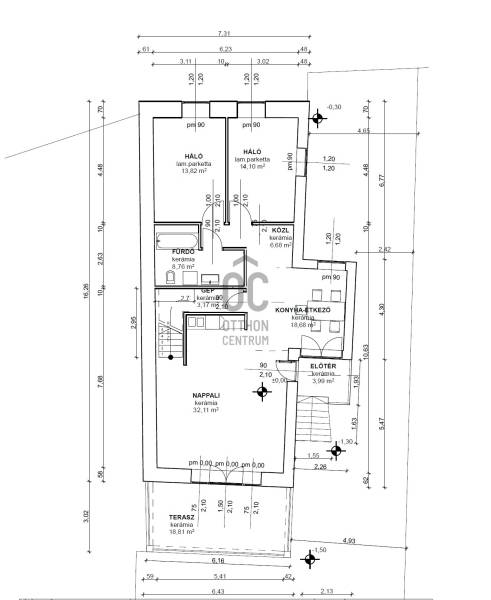
Alapterület: 180 m2
Fűtés: -
Állapota: -
Szobák száma: 5
Építés éve: 2023
Szintek száma: -

Részletes leírás

Zánka központi részén balatoni panorámás családi ház eladó!Egyedülálló lehetőség! 2022-ben lebontott és teljesen újjáépített, 180 nm-es prémium családi ház, igényesen és minőségi anyagokból megalkotva, lenyűgöző Balatonra nyíló örök panorámával! A ház 696 nm-es parkosított telken, valamint még egy 949 nm-es építési telekkel együtt, összesen 1645 nm-es birtokon várja új tulajdonosát.A tágas nappali-étkező-konyha óriási panoráma ablakokkal, a hangulatos terasz, 4 hálószoba, 2 fürdőszoba, egy csodás erkély, pince és kerti rész minden igényt kielégít. A hőszivattyú előkészítés, a padló és mennyezeti hűtés-fűtés rendszer, a modern lépcső, a kőből készült melléképület, mely kerti grillezővé alakítható, mind prémium kényelmet biztosítanak!Az ingatlan minden részlete igényes és egyedi – páratlan ajánlat a Balaton északi partján, Zánka központjában!Ne hagyja ki ezt a ritka lehetőséget!További információkért, vagy hogy megtekinthesse az ingatlant, keressen bizalommal a megadott elérhetőségeken!

További adatok

Telekterület: 1 645 m2
Kert mérete: 1 645 m2
Erkély mérete: 36 m2
Felszereltség: -
Parkolás: -
Kilátás: -
Egyéb extrák:  
-

Hirdető adatai

Hirdető neve: Otthon Centrum
Kapcsolattartó: Csöndes Attila
Hirdető telefonszáma: +36 70 469 3471
Honlap: -

Üzenetet küldhet a hirdetőnek:
Az Ön neve:
Az Ön e-mail címe:
Üzenet: