Budapest, XI.kerület


 

Hivatkozási szám: 3159536

Ingatlan adatai

Irányár: 150 000 000 Ft
Típus: ház
Kategória: eladó
Alapterület: 150 m2
Fűtés: -
Állapota: -
Szobák száma: -
Építés éve: 2005
Szintek száma: -

Részletes leírás

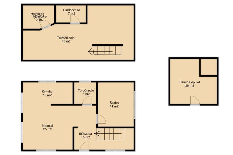
A 11. kerület egyik rejtett, intim zsákutcájában, a Kőérberki út 2. szám alatt kínáljuk megvételre ezt az izgalmas adottságokkal rendelkező ingatlant, közvetlenül az Egér út közelében. A környék infrastruktúrája rendkívül kedvező: a Kelenföldi vasútállomás és csomópont percek alatt elérhető, így az ingatlan könnyen megközelíthető mind autóval, mind tömegközlekedéssel.A 2005-ben épült épület statikailag kiváló, ugyanakkor esztétikailag és műszakilag felújítandó, ami lehetőséget ad az új tulajdonosnak, hogy saját igényei szerint formálja. Víz és villany be van vezetve, a közművek rendelkezésre állnak.A teljes terület 12 372 m2, ebből 4 750 m2 kerül értékesítésre! A telek jellegzetességei közé tartozik, hogy osztatlan közös tulajdon, ami szintén hozzájárul az ingatlan kedvezőbb árazásához. Az autópálya közelsége miatt a környezet zajosabb, ugyanakkor az épület körül nincsenek közvetlen szomszédok a látótávolságban, így különleges intimitást biztosít.A területi övezeti besorolás egyedülálló lehetőséget kínál: kifejezetten sport- és egészségügyi tevékenységek folytatására alkalmas, így ideális alap fitnesz-, jóga-, rehabilitációs vagy egészségközpont kialakítására.Az ingatlanhoz több melléképület és tároló tartozik, illetve egy önálló, stabil szerkezetű szaunaépület, amely tovább növeli a lehetséges funkciók körét.Főbb jellemzők:XI. kerület, Kőérberki út 2. – intim zsákutca2005-ben épült, statikailag kiváló, felújítandó házVíz és villany bekötveElőnyei: -Több tárolóépület + külön szaunaépület-Osztatlan közös tulajdon – ennek megfelelően kedvező ár- Nincsenek közeli szomszédok, intim elhelyezkedésKis ráfordítással új életet lehet lehelni az ingatlanba lakhatásra vagy vállalkozási célra, akár speciális szolgáltatóközpont kialakítására keres valaki egy elérhető árú, jól megközelíthető, mégis rejtett budapesti helyszínt.Amennyiben látja a víziót maga előtt, akkor lépjen velem kapcsolatba telefonon és egyeztessen időpontot, hogy még a héten megnézze személyesen is a helyszínt!Hitelezési Szakértőnk egyetlen lépésben bemutatja Önnek az összes pénzintézet ajánlatát - így elkerülheti a hosszadalmas és felesleges banki látogatásokat – gyorsan, hatékonyan és a legjobb döntést biztosítva Önnek

További adatok

Telekterület: -
Kert mérete: -
Erkély mérete: -
Felszereltség: -
Parkolás: -
Kilátás: -
Egyéb extrák:  
-

Hirdető adatai

Hirdető neve: Otthon Centrum
Kapcsolattartó: Benkő Szilamér
Hirdető telefonszáma: +36 70 469 3651
Honlap: -

Üzenetet küldhet a hirdetőnek:
Az Ön neve:
Az Ön e-mail címe:
Üzenet: