Jász-Nagykun-Szolnok megye, Szolnok


 

Hivatkozási szám: 3158084

Ingatlan adatai

Irányár: 62 000 000 Ft
Típus: ház
Kategória: eladó
Alapterület: 224 m2
Fűtés: gáz (konvektor)
Állapota: -
Szobák száma: 4
Építés éve: 1985
Szintek száma: -

Részletes leírás

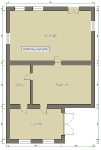
Szolnok, Szandaszőlős városrészben eladásra kínálom az alábbi paraméterekkel rendelkező ingatlant:- beton alapon, tégla építésű családi ház,- 225nm belső hasznos alapterület,- 3 szintes épület,- a szuterén részén, egy mai napig, működési engedéllyel rendelkező vendéglátó egység működik,- konvektoros fűtés,- beépített tetőtér,- 2 hűtő- fűtő klíma berendezés,- tágas, világos terek,- ipari áram, - jól megközelíthető helyen,- további tárolók,- több beállásos garázs,- 638nm telek,- remek választás, akár vállalkozás kialakítására is!Az ingatlan per-és tehermentes.Közelben bolt, buszmegálló,óvoda, iskola.Irodánkban bankfüggetlen hitelügyintézéssel állunk ügyfeleink rendelkezésére.A hirdetésben szereplő információk a megbízótól származnak, azért az iroda felelősséget nem vállal.

További adatok

Telekterület: 638 m2
Kert mérete: 638 m2
Erkély mérete: -
Felszereltség: -
Parkolás: -
Kilátás: -
Egyéb extrák:  
-

Hirdető adatai

Hirdető neve: Otthon Centrum
Kapcsolattartó: Rimóczi Ágnes
Hirdető telefonszáma: +36 70 461 9121
Honlap: -

Üzenetet küldhet a hirdetőnek:
Az Ön neve:
Az Ön e-mail címe:
Üzenet: