Pest megye, Mogyoród


 

Hivatkozási szám: 3155557

Ingatlan adatai

Irányár: 145 000 000 Ft
Típus: ház
Kategória: eladó
Alapterület: 170 m2
Fűtés: -
Állapota: -
Szobák száma: 6
Építés éve: 2008
Szintek száma: -

Részletes leírás

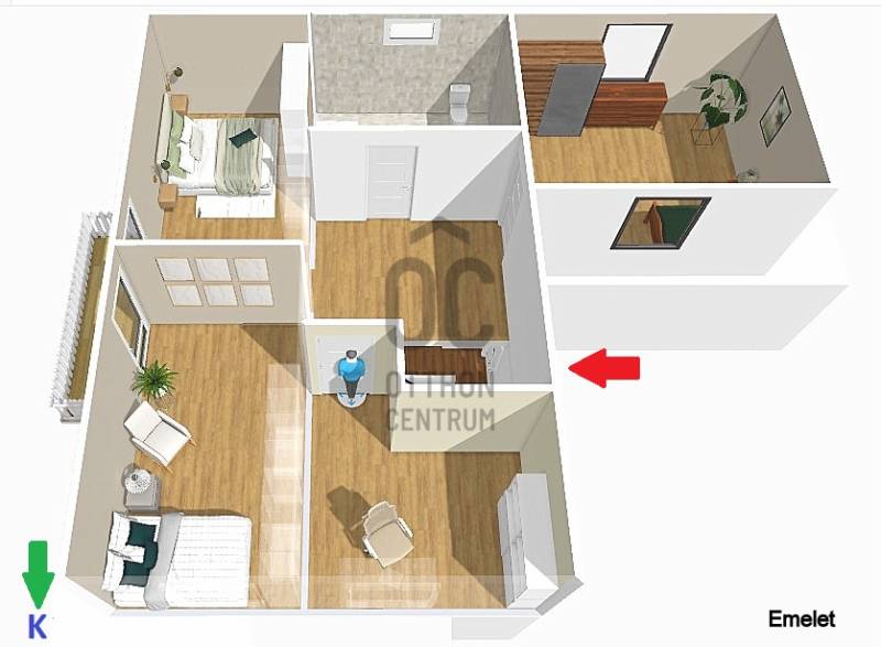
ANNAK, AKI A TERMÉSZET IGAZI ÉRINTÉSÉRE VÁGYIK ÉS SZERETNÉ „CSAK EGY KARNYÚJTÁSNYI TÁVOLSÁGRA” MAGA MÖGÖTT HAGYNI A FŐVÁROS ÁLLANDÓ PÖRGÉSÉT ÉS ZAJÁT, AHOL A CSEND, A NYUGALOM, A ZÖLD KÖRNYEZET ÉS AZ ÉLHETŐSÉG „HÁZA ÉS OTTHONA” VÁRJA MAJD NAP MINT NAP ÖNT ÉS A KEDVES CSALÁDJÁT IS HAZA, AKKOR MOST JÓL FIGYELJEN… ...MOGYORÓDON ELADÓ EGY KÍVÜL-BELÜL TELJESEN FENYŐFÁBÓL ÉPÍTETT, BELSŐ KÉTSZINTES, NETTÓ 170 M2-ES (BRUTTÓ 190 M2-ES), 6 EGÉSZ SZOBÁS (AMERIKAI KONYHÁS ÉTKEZŐS NAPPALI + 5 HÁLÓSZOBÁS), 2 FÜRDŐSZOBÁS (DUPLA KOMFORTOS), TERASZOS, ERKÉLYES ÉS GARÁZSOS, ESZTÉTIKAILAG ÉS MŰSZAKILAG IS NAGYON JÓ / KARBANTARTOTT ÁLLAPOTBAN LÉVŐ „GERENDAHÁZ”, AMELY MINDEN APRÓ RÉSZLETÉVEL TÖKÉLETESEN EGGYÉ VÁLIK AZ ŐT KÖRÜLVEVŐ KÖRNYEZETÉVEL !!!Ez a különleges „nem mindennapi ingatlan” Mogyoród Újfalu településrészén, egy csendes, nyugodt, családi házakkal és kellemes zöld környezettel gazdagon körbevett, rendezett utcában található. Önálló helyrajzi számon nyilvántartott, belterületi, tulajdon jogilag összesen 557 m2-nyi, összközműves telekterülettel rendelkező. Nagyon masszív beton alapra statikailag nagyon stabil vázszerkezettel, a maximális élhetőség jegyében nagyon praktikus belső elosztással megtervezett, teljes egészében (kívül-belül) minőségi skandináv fenyőfából, magas minőségben 2008-ban megépített / kivitelezett és azóta is folyamatosan karbantartott + pár évvel ezelőtt egy 12,3 KW teljesítményű napelemrendszer kiépítésével és a tetőtéri lakószint / tetőszerkezet újra szigetelésével energiahatékonyságában még tovább modernizált / korszerűsített, gázcirkókazánnal működtethető központi fűtésrendszerrel + alternatív megoldásként az új napelemrendszernek köszönhetően lakószintenként hűtő-fűtő klímaberendezésekkel (a megtermelt napenergiával teljes egészében működtetett) is kiegészített, thermo üvegezésű (hőszigetelt) és a mind a négy égtáj felé néző ablakainak köszönhetően egész nap közvetlenül napsütötte, nagyon egyedi és különleges hangulatot árasztó. A családi ház alsó szintjén kapott helyet a - nagyobb részben fedett - 6,4 m2-es teraszkapcsolattal is rendelkező, egy légtérben elhelyezkedő, hatalmas méretű (34,1 m2-es), praktikusan beépített és begépesített (gáztűzhely, mosogatógép, pára-, és szagelszívó berendezés) amerikai konyhás + étkezős nappali, egy pici (1,5 m2-es), de annál praktikusabb kamrahelyiség, egy teljesen külön nyíló 14,1 m2-es hálószoba, az összesen 15,4 m2-en elhelyezkedő - a bejárati előteret / előszobát és egyben egy beépített szekrényes, tágas közlekedőt is magába foglaló rész - amelyből az 5 m2 alapterületű, zuhanyzóval és WC-vel is ellátott, ablakos (szellőztethető / világos) fürdőszoba, a ház (alap)fűtéséért felelős gázkazánnak és a külön a meleg víz ellátásáért felelős - vezérelhető / programozható, falra szerelt, digitális (elektromos) „ARISTON VELIS EVO” típusú, dupla tartályos, öntanuló funkcióval ellátott - villanybojlernek is otthont adó kazánház, valamint a házból közvetlen bejutással rendelkező(!), 24,1 m2 alapterületű, automata (távirányítható) kapuval és fűtéssel(!) is ellátott, egy nagyobb személygépjárműnek vagy akár egy kisebb méretű haszongépjárműnek (pl: kis árúszállító furgon) + további kisebb közlekedési eszközöknek is (pl.: motorkerékpár, hagyományos bicikli, roller, stb...) is nagyon kényelmes és zárt beállást, valamint - további fejlesztéssel / kiépítéssel egy elektromos gépjárműnek a töltési lehetőségét is - biztosító garázshelyiség, ahol a tetőn kiépített napelemrendszer inverter egysége is helyet kapott. A napelemrendszer üzemeltetéséhez - a ház eredetileg 1 fázisú elektromos hálózatát - természetesen 3 fázisúvá bővítették fel! Az ingatlan 2 lakószintjét egy nagyon masszívan megépített, kényelmes és tágas, természetes fénnyel is ellátott (ablakos) lépcsőház köti össze. A ház felső lakószintjén a lépcsőházból egy 9,2 m2-es alapterületű, praktikus beépített szekrénnyel is előtérbe jutunk, amely a megfelelő bútorozással akár egyfajta közösségi térnek / pihenőnek / dolgozónak is kényelmesen és praktikusan kialakítható és használható. Ebből az előtérből egymástól teljesen külön-külön nyílik mind a 4 darab egész méretű hálószoba (13,6 m2 / 13,5 m2 / 13,2 m2 / 8,2 m2) - amelyből 2 hálószoba is közvetlen kijutást biztosít a 4,6 m2 alapterületű, panorámás teraszra - valamint a hatalmas (2 személyes) sarokkáddal, bidével és WC-vel is felszerelt, ablakos (szellőztethető / világos), minden kényelmet kiszolgáló, 8,8 m2 alapterületű fürdőszoba is. A családi ház alapterületén kívül eső - a még így is kényelmesen fennmaradó és bőséges élettere(ke)t kínáló, kb. 450 m2-nyi telekterület - a garázs és az automata (távirányítható) elektromos motorral mozgatott kapu mögötti térkövezett feljáró részen további 1 személygépjárműnek zárt beállási lehetőséggel, de igény / szükség esetén az udvaron akár további parkolási lehetőség(ek) kialakításával rendelkezik, valamint akár „kisebb házi gazdálkodásra” (pl.: konyhakertnek, veteményesnek, fóliasátornak és / vagy üvegháznak, gyümölcsfáknak…) akár „kertészkedésre / pihenésre” (pl.: parkosításra / füvesítésre / virágos kertnek / fáknak / bokroknak / örökzöldeknek, bográcsozós / sütögetős helynek / gyerekeknek házi játszótérnek, családi fürdőmedencének, stb…) is kiválóan alkalmas !!! :)Az ingatlan masszív betonalapra épült. A ház megépítéséhez használt első osztályú, minőségi fenyő faanyagok (kültéri-, és beltéri, fali-, és padlóborítások és burkolatok) teljes egésze skandináv erdőkből származik! A külső és belső határoló falazatok között a hőszigetelési és az energiahatékonysági előírásoknak megfelelő vastagságú kőzetgyapot szigetelés került beépítésre. A tető teljes felületét hibátlan állapotú, minőségi betoncserépfedés borítja, valamint az esővíz elvezetéséről a cserepezés színével megegyező, horganyzott (korróziómentes) csatornarendszer gondoskodik! A ház teljes külső fafelületeinek a teljes körű állagmegóvása / festése (lazúrozása) / a külső környezeti hatások (időjárás) elleni védelme a közelmúltban történt meg! A családi háztól pár percnyi kényelmes sétával a kisebb (napi) bevásárlási-, és szolgáltatási lehetőségek és a közintézmények (pl.: bölcsőde, óvoda, iskola, posta, orvosi rendelő, gyógyszertár) is mind-mind megtalálhatók, valamint a település kiváló infrastrukturális elhelyezkedésének és közlekedésének (pl.: helyközi-, és távolsági buszjáratok, 10 perc sétatávolságra a H8-as HÉV közlekedés az Örs Vezér tere felé, az M0-s autópálya (körgyűrű), az M3-as autópálya, a régi 3-as számú gyorsforgalmú úthálózat) köszönhetően Budapest egésze szinte csak egy karnyújtásnyira van !!!Mogyoród mint a pesti agglomeráció egyik legkedveltebb települése, Budapesttől keleti irányba 18 km-re található az M3-as autópálya által átszelve, a Cserhát délnyugati nyúlványát képező Gödöllői-dombság K-Ny-i irányú mély völgyeinek egyikében. A lakosság jelenlegi lélekszáma kb. 7000 fõ és egyre többen fedezik fel a falu nyugalmában és a nagyváros közelségében rejlő előnyeit, valamint a településnek a gyönyörű fekvését, a kedvező megközelíthetőségét és nem utolsósorban pedig az infrastrukturális ellátottságát is, amivel minőségi és teljes értékű életkörülményeket nyújt a Mogyoródon élőknek és majd az ezután odaköltözőknek egyaránt.Éljen a lehetőséggel, jöjjön el és nézze meg személyesen, győződjön meg mindenről a saját szemével, kérdezzen bátran, beszélgessünk róla, tudjon meg mindent és szeressen bele !!! ;)AZ ÁR IRÁNYÁR !!!A családi ház megvásárlásához megfelelő önerővel rendelkező + ***piaci kamatozású lakáshitel felvétellel, akár hitelfelvétellel is kombinálható ***lakáskassza megtakarítással, vagy ***a 2024. január 1-től már elérhető - használt ingatlanvásárlás után is igényelhető és egyben teljes vagyonszerzési illetékmentességet is biztosító(!) - családi otthonteremtési kedvezmény (CSOK Plusz) keretein belül államilag támogatott max. 3%-os kamatozású és maximum 25 éves futamidőre felvehető hitel konstrukcióval, valamint a ***babaváró programon keresztül igényelhető / felhasználható pénzösszegből vásárlók megkeresését is nagy szeretettel várom !!!Az ingatlan az adásvételi szerződéskötéshez elengedhetetlen jogbiztonsági szempontból rendezett tulajdonosi háttérrel (tulajdoni lappal), valamint teljes mértékben per-, teher-, és igénymentességgel rendelkezik!A családi ház - a fotókon is látható - kiürített / költözésre kész állapotban van, így a birtokba adása a vételár teljes kifizetését követően azonnal biztosított !!!Ha a leírtak és a látottak alapján felkeltettem az érdeklődését, megelőlegezett bizalmát előre is megköszönve, akár a hétvégén is várom szíves jelentkezését!***Az igénylési / felhasználási feltételekkel kapcsolatban, valamint ezek ügyintézésben is, az Otthon Centrum hitelközvetítő munkatársával együtt, készséggel állok az Ön szíves rendelkezésére!

További adatok

Telekterület: 557 m2
Kert mérete: 557 m2
Erkély mérete: 11 m2
Felszereltség: -
Parkolás: -
Kilátás: -
Egyéb extrák:  
-

Hirdető adatai

Hirdető neve: Otthon Centrum
Kapcsolattartó: Angyal Attila
Hirdető telefonszáma: +36 70 461 9556
Honlap: -

Üzenetet küldhet a hirdetőnek:
Az Ön neve:
Az Ön e-mail címe:
Üzenet: