Bács-Kiskun megye, Ballószög


Ballószög 

Hivatkozási szám: 3155333

Ingatlan adatai

Irányár: 63 000 000 Ft
Típus: ház
Kategória: eladó
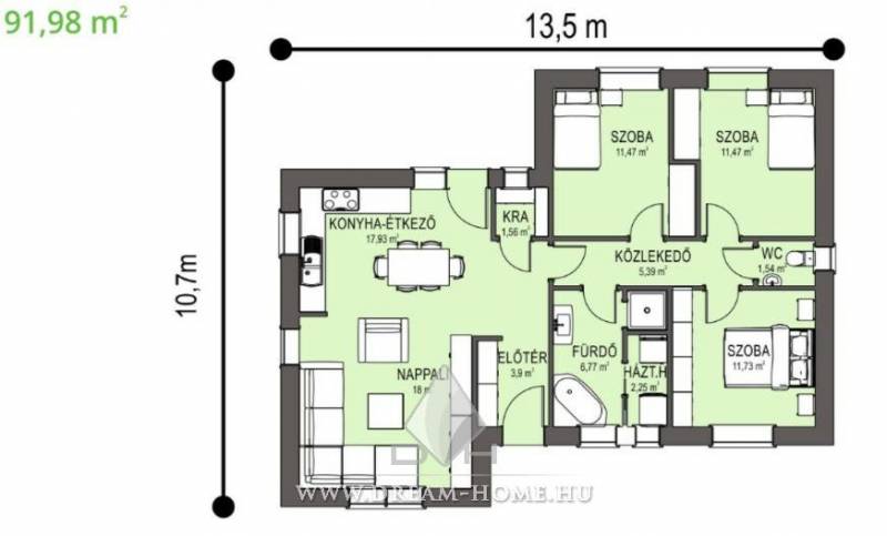
Alapterület: 92 m2
Fűtés: -
Állapota: új
Szobák száma: 4
Építés éve: -
Szintek száma: -

Részletes leírás

Ballószögben eladó új-építésű házAz ár kulcsrakész állapotban történő átadással értendő és a telek árát is tartalmazza!Eladásra kínálunk egy napelemmel felszerelt 92 m2-es családi ház projektet Ballószög új-építésű részén 724 m2-es közművesített telken. Mire elég a házra felszerelt napelem? A teljes ház egész évben történő felfűtéséhez 21-22°C-on tartva. A további felszabadult energiát a rendszer visszatölti az áramhálózatba, melynek okán további 40-60%-os áramszámla csökkenés, vagy akár teljes energiamentesség eredményezhető.Az elkészülési idő garantált 10 hónap!A családi ház nettó alapterülete 92 m2, amely tartalmaz:– 4 szobát (amerikai konyha-nappali-étkező + 3 hálószoba);– 1 fürdőszobát;– 1 WC-t;– kamrát;– háztartási helyiséget;– és egy előszobát.Műszaki tartalom:– Teherhordó falazat: Wienerberger Profi 30 K klíma tégla– Homlokzati hőszigetelés: 15 cm homlokzati hőszigetelés– Tetőhéjazat: Bramac vagy Terrán tetőcserép– Külső nyílászárók: 3 réteg üvegezésű 6 légkamrás Marshall Gealan külső nyílászárók– Válaszfal: Isover Akusto hangszigetelt válaszfalak– Gépészet:(a) Napelem** + gáz fűtés Ariston CLAS ONE 24 kW vagy Bosch Condens 3000 24 kW kondenzációs gázkazán (padlófűtéssel)(b) Napelem** + infra fűtés (padlófűtéssel)– Hidegburkolat választható: 8.500 Ft / m2 (bruttó)– Melegburkolat választható: 6.500 Ft / m2 (bruttó)– Szaniterek választható: (kád, zuhanykabin, csaptelep stb.) 600.000Ft-ig*Az ár kulcsrakész állapotban történő átadással értendő, konyhabútor és lámpatestek nélkül!**A napelem mennyisége az épület hasznos területének függvénye!Használja ki Ön is a Babaváró hitel nyújtotta lehetőségeket! Keressen ingyenes tanácsadásért hogy megtudjuk pontosan milyen lehetőségei vannak az otthon teremtésre!Ha a neten nem találja álmai otthonát, ne aggódjon, mi megtaláljuk Önnek! Amennyiben finanszírozásra is szüksége van a vásárláshoz, vagy ÁLLAMI TÁMOGATÁST is szeretne kapni, esetleg CSOK-ot vagy BABAVÁRÓ-t igényelne, ne aggódjon, BANKCENTRUMUNK 30 bank ajánlatából kiválasztja Önnek a LEGJOBB megoldást! Ami megoldható azt mi megoldjuk!Hívjon bizalommal!Horváth JózsefprojektmenedzserKMUJ813/20

További adatok

Telekterület: 724 m2
Kert mérete: 724 m2
Erkély mérete: -
Felszereltség: -
Parkolás: -
Kilátás: -
Egyéb extrák:  
-

Hirdető adatai

Hirdető neve: Dream-Home Ingatlaniroda és Új Ház Építő Centrum
Kapcsolattartó: Horváth József
Hirdető telefonszáma: +36305992994
Honlap: -

Üzenetet küldhet a hirdetőnek:
Az Ön neve:
Az Ön e-mail címe:
Üzenet: