Pest megye, Érd


Juharfa utca - Parkváros 

Hivatkozási szám: 3154911

Ingatlan adatai

Irányár: 59 500 000 Ft
Típus: telek
Kategória: eladó
Alapterület: 857 m2
Fűtés: -
Állapota: -
Szobák száma: -
Építés éve: -
Szintek száma: -

Részletes leírás

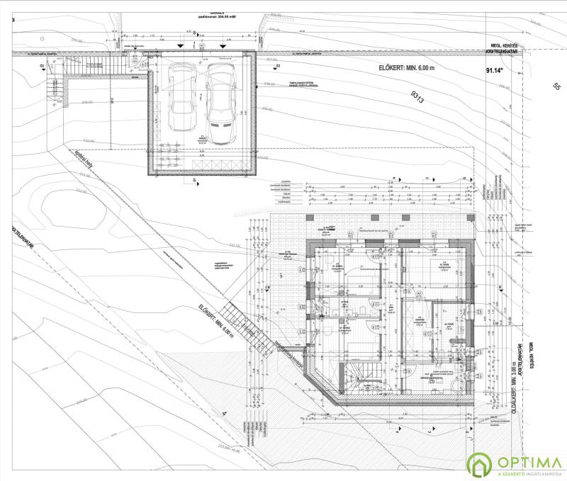
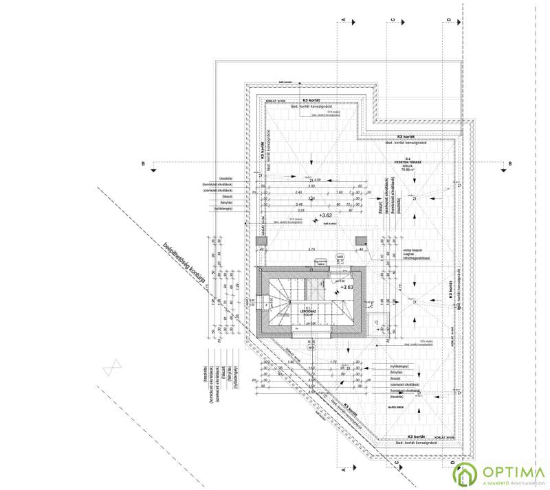
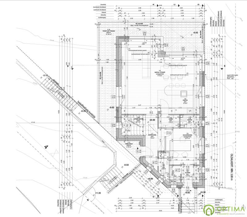
CSALÁDI HÁZ ÁLOM PANORÁMÁVALKezdje itt új életét egy exkluzív, örökpanorámás telken, ahol minden adott a családi álomotthon megvalósításához. A vételár tartalmazza az érvényes építési engedélyt és a részletes terveket is, így az építkezés akár azonnal elindítható, hosszadalmas ügyintézés nélkül.Érd-Parkváros egyik legkeresettebb, legmagasabb pontján kínálok megvételre egy 857 m²-es, összközműves építési telket, amely lenyűgöző, 180 fokos örökpanorámával ajándékozza meg leendő lakóit. A három utcafronttal rendelkező intim saroktelek különlegessége, hogy csak egyetlen közvetlen szomszéddal határos, így teljes nyugalmat és szeparált életteret kínál. A csendes, kis forgalmú mellékutcában való elhelyezkedés tovább növeli az ingatlan exkluzivitását.A hirdetés 2., 3. és 4. képén látható kilátás a tervezett épület legfelső szintjének magasságából készült – pontosan ezt a panorámát élvezheti majd minden nap!FŐBB ELŐNYÖK- Érvényes építési engedély – időt, pénzt és utánajárást spórolhat- Részletes külső-belső építészeti tervek – azonnal elkezdhető építkezés- 180 fokos örökpanoráma – kilátás természetvédelmi területre- 3 utcafront, csak egy szomszéd – zavartalan, intim élettér- Csendes, kis forgalmú mellékutca – Nyugalmat árasztó környezet- Összközműves telek – víz, villany, csatorna, gáz a telken belül- Energiatakarékos házterv – hőszivattyú, napelem, padlófűtés- Gyors közlekedés – M0, M1, M7 autópályák perceken belülA MEGLÉVŐ TERVEK SZERINT- Bruttó: 220 m² | Nettó: 160 m² lakótér- Alsó szint: 3 hálószoba, 2 fürdőszoba, gardrób- Felső szint: amerikai konyhás nappali nagy terasszal + leválasztott dolgozószoba saját mosdóval- 2 állásos garázs (nettó 42 m²)- Minden szinten terasz, a tetőteraszon (80 m²) jakuzzi, grillező, napelem elhelyezési lehetőséggelA belső elrendezés igény szerint módosítható, akár azonnal benyújtható tervmódosítással – nem szükséges új engedélyeztetési eljárás.RENDEZETT KÖRNYEZET, BIZTONSÁGOS ÉLETTÉRA telek egy barátságos, kis forgalmú mellékutcában található, mégis néhány perc alatt elérhető Érd központja, óvoda, iskola, bevásárlási lehetőségek és buszmegálló is. A környék folyamatosan fejlődik, újépítésű házak veszik körül, így hosszútávon is értékálló környezetet kínál.Ez az ingatlan tökéletes választás azoknak a családoknak és építkezőknek, akik kompromisszumok nélkül szeretnének egy különleges, természetközeli, mégis jól megközelíthető helyen otthont teremteni.Örömmel várom HÍVÁSÁT a telek megtekintése kapcsán akár HÉTVÉGÉN VAGY AZ ESTI órákban is!

További adatok

Telekterület: 857 m2
Kert mérete: -
Erkély mérete: -
Felszereltség: -
Parkolás: -
Kilátás: -
Egyéb extrák:  
-

Hirdető adatai

Hirdető neve: OPTIMA - A szakértő ingatlaniroda
Kapcsolattartó: Csiszár Rudolf
Hirdető telefonszáma: +36203205225
Honlap: -

Üzenetet küldhet a hirdetőnek:
Az Ön neve:
Az Ön e-mail címe:
Üzenet: