Tolna megye, Medina


 

Hivatkozási szám: 3143921

Ingatlan adatai

Irányár: 21 000 000 Ft
Típus: ház
Kategória: eladó
Alapterület: 66 m2
Fűtés: egyéb
Állapota: -
Szobák száma: 2
Építés éve: 1923
Szintek száma: -

Részletes leírás

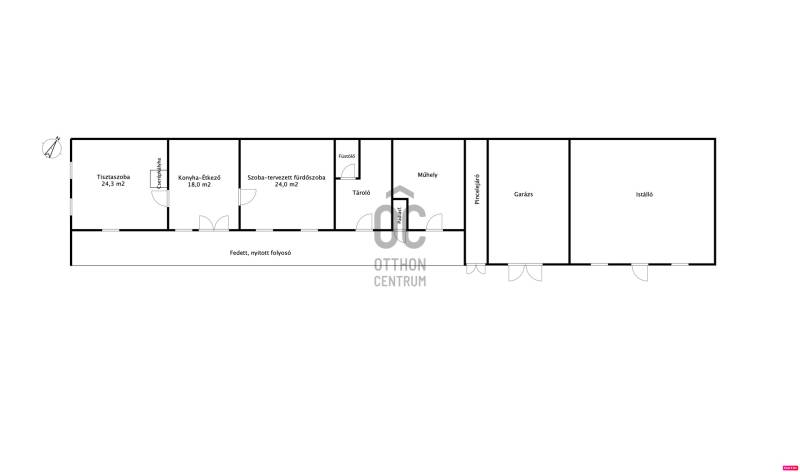
Őstermelők, aranykalászos gazdák, bejegyzett földművesek figyelmébe ajánlom ezt a nem mindennapi házat, földterülettel Szekszárdtól 20 km távolságra Medinán.Tudni akarod, hogy mit eszel? Fontos, hogy amit megeszel az tényleg tápláljon? Akkor a legbiztosabb, ha megtermeled magadnak!A gyümölcsfák bió gazdálkodásban kezeltek, a földterület ki van adva művelésre.A területen álló parasztház felújítását tulajdonosai elkezdték, a tetőfedést cserepes lemezre cserélték, új ereszcsatornát kapott a ház. A falak teljesen szárazak, az épület rendkívül jó szerkezeti állapotú.A házban elkezdték a fürdőszoba kialakítását, illetve a ház lakó részének felújítását.A felújítás befejezése, az új tulajdonos feladata.Az épület folytatásában nagyméretű nyitott füstölő, műhely, garázs, és istálló is található, illetve a gépeknek egy fedett szín.Menjünk nézzük meg élőben!Regisztrációs szám: H501217Teljes körű pénzügyi megoldások ügyintézése díjmentesen.Minden élethelyzetre végzünk pénzügyi elemzést - ha vásárolni szeretne, segítünk, hogy ezt a legjobb feltételek mellett tegye; ha eladni szeretné ingatlanát, nézzük meg, hátha érdemes meglévő hitelét átváltani.Keressen bizalommal, szakértők vagyunk!

További adatok

Telekterület: 12 997 m2
Kert mérete: 12 997 m2
Erkély mérete: -
Felszereltség: -
Parkolás: -
Kilátás: -
Egyéb extrák:  
-

Hirdető adatai

Hirdető neve: Otthon Centrum
Kapcsolattartó: Bihary Szabolcs
Hirdető telefonszáma: +36 70 716 9966
Honlap: -

Üzenetet küldhet a hirdetőnek:
Az Ön neve:
Az Ön e-mail címe:
Üzenet: