Nógrád megye, Kálló


 

Hivatkozási szám: 3139758

Ingatlan adatai

Irányár: 19 000 000 Ft
Típus: ház
Kategória: eladó
Alapterület: 101 m2
Fűtés: gáz (konvektor)
Állapota: -
Szobák száma: 3+1
Építés éve: 1970
Szintek száma: -

Részletes leírás

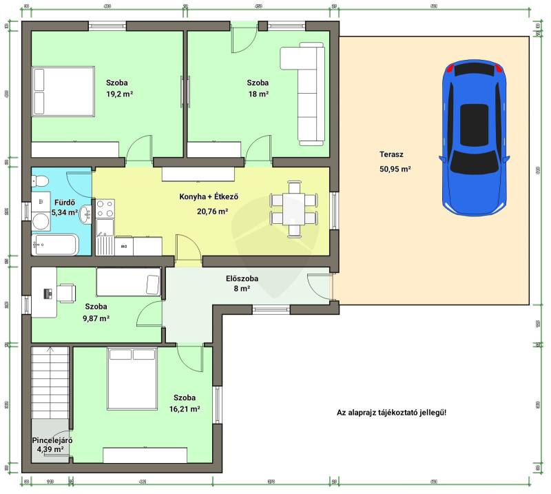
Kálló csendes részén mégis közel a központhoz kínáljuk eladásra ezt a 101 nm-es, részben felújított lakóingatlant, amely tökéletes választás lehet családosok számára. Az ingatlan szerkezetileg jó állapotú, de rengeteg lehetőséget rejt magában, hogy a saját ízlésed szerint alakítsd át. A három tágas szobával és egy félszobával, valamint egy fürdőszobával a család minden tagjának kényelmes teret biztosít. A 998 nm-es telek lehetőséget ad a szabadban való pihenésre, a gyerekek biztonságos játékára, vagy akár egy kis kert kialakítására is. Az fedett udvari beálló és a garázs férőhelye biztosítja, hogy autóddal mindig kényelmesen parkolj.A gázkonvektoros fűtés + 1 éves vegyestüzelésű kazán és a légkondicionáló rendszer gondoskodik arról, hogy az ingatlanban mindig kellemes hőmérséklet legyen, bármilyen évszakban. A ház alatt száraz pince található.A környék előnyei között említést érdemel a központi elhelyezkedés, amely lehetővé teszi, hogy könnyedén elérd a szükséges szolgáltatásokat, boltokat és iskolákat. A tömegközlekedési lehetőségek is kedvezőek: a helyi buszjáratok gyorsan elérhetővé teszik a közeli településeket, míg autóval a főbb utak is könnyen megközelíthetők. Ez az ingatlan tehermentes, ha érdekel a lehetőség, hogy saját otthonod legyen egy csendes, mégis központi elhelyezkedésű környéken, ne habozz, keress bizalommal!

További adatok

Telekterület: 998 m2
Kert mérete: 998 m2
Erkély mérete: -
Felszereltség: -
Parkolás: -
Kilátás: utcai
Egyéb extrák:  
-

Hirdető adatai

Hirdető neve: Ingatlanmentor powered by Rock Home
Kapcsolattartó: Horváth Tibor
Hirdető telefonszáma: +36 70 467 6871
Honlap: -

Üzenetet küldhet a hirdetőnek:
Az Ön neve:
Az Ön e-mail címe:
Üzenet: