Nógrád megye, Jobbágyi


 

Hivatkozási szám: 3139128

Ingatlan adatai

Irányár: 27 500 000 Ft
Típus: ház
Kategória: eladó
Alapterület: 170 m2
Fűtés: gáz (cirko)
Állapota: felújítást igényel
Szobák száma: 4+2
Építés éve: 1980
Szintek száma: -

Részletes leírás

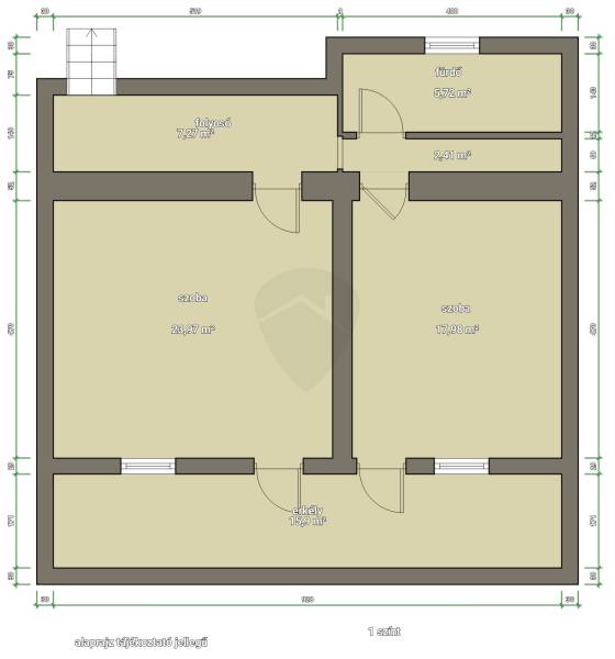
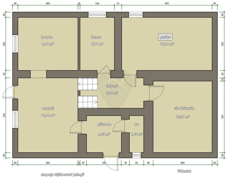
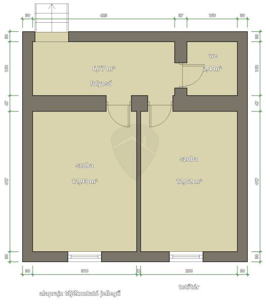
Fiatal felnőttek figyelem! Ha egy igazán tágas, világos otthont keresel, ahol valóra válthatod álmaidat, akkor ezt a felújítandó ingatlant nem szabad kihagynod! A Nógrád megye szívében, Jobbágyiban található Kossuth úton elhelyezkedő eltolt színtest lakóingatlan 170 m2-es alapterülettel és 949 m2-es telekkel várja új gazdáját. Az ingatlan ideális választás lehet, akár saját célra, akár befektetési lehetőségként. Az ingatlanban négy szoba és két félszoba található, így bőséges helyet biztosít családodnak vagy akár baráti társaságodnak. A tágas nappali tökéletes helyszín a közös programokhoz, míg a terasz és az erkélyek remek lehetőséget kínál a pihenésre és a szabadban eltöltött időre. A fürdőszoba számos lehetőséget rejt magában, hiszen a felújítás során saját ízlésed szerint alakíthatod ki a fürdőszobát és a konyhát is. A környék csendes, nyugodt, így ideális helyszín lehet a kikapcsolódásra. A közlekedés kiváló, hiszen Jobbágyi jól megközelíthető autóval és tömegközlekedéssel egyaránt. A közeli buszmegállók révén könnyedén elérheted a környező településeket, míg az autóval való közlekedés során a főbb közlekedési útvonalak gyorsan elérhetőek. Ezen kívül a városban számos bolt, iskola és szolgáltatás található, így minden szükséges dolog pár perces távolságra elérhető. A gáz (cirkó) fűtésnek köszönhetően és a vegyes tűzetésű kazán a téli hónapokban is kellemes meleg vár majd rád otthonodban. A felújítandó állapot lehetőséget ad arra, hogy a saját elképzeléseid szerint formáld át az ingatlant, így valóban a saját otthonod lehet, amely minden igényedet kielégíti. Ne habozz, hiszen az ilyen lehetőségek gyorsan elkelnek! Ha bármilyen kérdésed van, vagy szeretnéd megtekinteni ezt a remek ingatlant, ne tartsd magadban! Bizalommal kereshetsz, szívesen állok rendelkezésedre a részletekkel kapcsolatban. Az álmaid otthona csak egy lépésnyire van!

További adatok

Telekterület: 949 m2
Kert mérete: 949 m2
Erkély mérete: 23 m2
Felszereltség: -
Parkolás: -
Kilátás: utcai
Egyéb extrák:  
-

Hirdető adatai

Hirdető neve: Ingatlanmentor powered by Rock Home
Kapcsolattartó: Balog Dávid
Hirdető telefonszáma: +36 70 467 6818
Honlap: -

Üzenetet küldhet a hirdetőnek:
Az Ön neve:
Az Ön e-mail címe:
Üzenet: