Budapest, XX.kerület


 

Hivatkozási szám: 3136599

Ingatlan adatai

Irányár: 62 000 000 Ft
Típus: ház
Kategória: eladó
Alapterület: 66 m2
Fűtés: gáz (cirko)
Állapota: -
Szobák száma: 3
Építés éve: 1940
Szintek száma: -

Részletes leírás

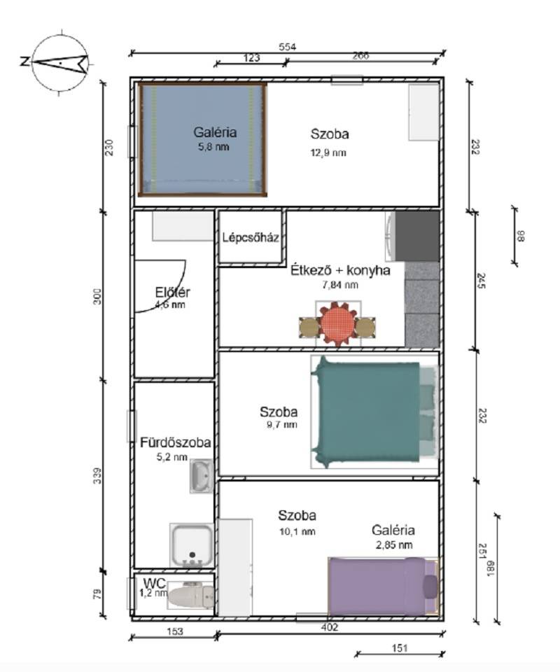
Amennyiben az adatok, fotók felkeltették érdeklődését, akkor várom szeretettel egy megtekintésre.Még néhány fontos információ:- A fűtést gázcirkó biztosítja, amit 2019 novemberében raktak fel. Hatékony és gazdaságos megoldást kínál a hidegebb hónapokban.- A ház vegyes falazatú (kő és tömör tégla), melynek köszönhetően az otthon melege és hangulata minden évszakban megmarad.- A belső felújítás 2019-ben megkezdődött. Mit is jelent ez:- 3 fázisú villanyhálozatot építettek ki- a kisebbik szobában galéria hozzáépìtés készült 2024-ben - a nagyobbikban gipszkarton elválasztòfal került kialakításra, ezzel létrehozva külön hálószobát a nappali mellé.- a fürdőszobában sötétszürke greslap került lehelyezésre, az oldalfalak viszont újragondolàsra vàrnak.- a fürdőszoba kényelmét kàdas zuhanykabin biztosítja, amely igény esetén elbonthatò.A házhoz tartozó kis telek remek helyszínt biztosít a kertészkedésre vagy akár egy kellemes nyári esti baráti összejövetel helyszínéűl. A hálószoba ablaka az udvarra szegeződik, garantálva ezzel a nyugalmas és zavartalan környezetet az egyébként is csendes mellékutcában.OSZTOTT közös tulajdonú az ingatlan, ezért természetesen ügyvédi használati megosztással rendelkezik. Így jogilag tiszta és hitel is felvehető rá.A birtokbaadásra az eladó 3-4 hónapot kérni fog, így ha ez is megfelelő, kérem hívjon.

További adatok

Telekterület: 90 m2
Kert mérete: 90 m2
Erkély mérete: -
Felszereltség: -
Parkolás: -
Kilátás: -
Egyéb extrák:  
-

Hirdető adatai

Hirdető neve: Otthon Centrum
Kapcsolattartó: Baji Andrea
Hirdető telefonszáma: +36 70 388 6306
Honlap: -

Üzenetet küldhet a hirdetőnek:
Az Ön neve:
Az Ön e-mail címe:
Üzenet: