Somogy megye, Fonyód


 

Hivatkozási szám: 3134715

Ingatlan adatai

Irányár: 65 739 000 Ft
Típus: lakás (újépítésű)
Kategória: eladó
Alapterület: 36 m2
Fűtés: -
Állapota: új
Szobák száma: 2
Építés éve: 2025
Szintek száma: -

Részletes leírás

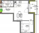
Köszöntöm kedves érdeklődőt, aki az ingatlanpiac legújabb ajánlatait böngészi!Szeretném figyelmébe ajánlani a legfrissebb eladó ingatlanunkat, mely egy vadonatúj lakás Fonyódon. Az ingatlan Somogy vármegyében fekszik, ahol a gyönyörű Balaton-parti város, Fonyód várja az új tulajdonosokat. A környék csendes és biztonságos, így ideális választás bármelyik korosztálynak legyen, idős, középkorú, fiatalkorú vásárlóinknak, akik szeretnének egy nyugodt, kellemes környezetben nem csak pihenni, hanem akár életvitelszerűen élni minden nap.Az ingatlan kiváló állapotban van, 2. emeleti 36,01 nm alapterületű amerikaikonyhás nappali,+ 1 hálószoba, fürdőszoba-wc helyiséggel rendelkezik. Az ingatlanhoz tartozik egy 5,32 nm alapterületű erkély. A lakás fűtése és hűtése hőszivattyús rendszerrel történik, így az energiaköltségek alacsonyak és környezetbarát megoldást kínálnak. A környék előnyös adottságai közé tartozik, hogy a közlekedési lehetőségek kiválóak, így akár autóval, akár tömegközlekedéssel is könnyen elérhető. A közeli buszmegállók és vasútállomások lehetővé teszik, hogy könnyen eljuthasson a városközpontba vagy a környező településekbe. A környék további előnyei közé tartozik a gyönyörű természeti környezet, ahol a Balaton és a környező szőlődombok között számos kirándulási lehetőség várja az aktív életmód kedvelőit.Fizetési ütemezés:szerződéskötéskor foglaló 10%Alapozási munkák elkészültekor 20%II.em.födém betonozásának elkészültekor 30%Gépészeti, villamos alapszerelés elkészültekor 30%Műszaki átadást követő 8 nap5%Jogerős hasz.vételi engedély megszerzését követő 8 nap5%A várható birtokba adás 2027. január 31-ig megtörténik.Ha bármilyen kérdése van az ingatlannal kapcsolatban, ne habozzon felvenni velünk a kapcsolatot. Ügyfélszolgálatunk készen áll arra, hogy segítsen Önnek a vásárlási folyamat minden szakaszában. Várjuk érdeklődését!Projekt bemutatásaTökéletes választás minden korosztálynak,időseknek, fiataloknak, gyermekes családok számára Fonyódligeten!Új építésű egész évben használható társasházi lakások Fonyódligeten 200 méterre a Balaton partjától.A lakópark 3 épületből fog állni.A \"C\" épületben még 19 lakóingatlan és 4 üzlethelyiség kerül kialakításra. Ezek az ingatlan egységek a vételár megfizetését követően birtokba vehetőek.A \"B\" épületben még 34 lakóingatlan egység kerül kialakításra. A \"B\" épület várható átadása 2025. március 1-ig megtörténik.A \"A\" épületben még 26 lakóingatlan egység kerül kialakításra. A \"A\" épület várható átadása 2027. január 31-ig megtörténikMagas minőségben tervezett és készülő modern és kényelmes otthonok várják az új tulajdonosok, akik a pihenéssel töltenék a szabadidejüket és nem karbantartással, kerti munkával. A társasház az emeleti lakásoknak is kényelmesen megközelíthető a lépcsőházban található lifttel. A belső zöld udvar barátságos hangulatos, lazítja az épületek hangulatát. Három épületből az egyik épület átadás előtt áll. Itt még 4 lakás elérhető.Különleges extrák a pihenéshez a tulajdonosok által használható Tetőteraszra telepített wellness részleg: szauna, jakuzzi páratlan Balatoni panorámával.A emelt szerkezetkész középső épület tetején wellness kerül kialakításra. A társasház energia ellátás igényeit a tetőre telepített napelemek által megtermelt áram nagy mértékbe csökkenti, így nem kell tartani magas közös költségtől a tulajdonosoknak.A beruházó, kivitelező cégnek megismerhetők a korábbi referencia munkái.A \"C\" épület földszintjén 4 db üzlethelyiség került kialakításra, amelyek várják a vállalkozó szellemű kereskedőket, büfé, kávézó, élelmiszerüzlet vagy más egyéb szolgáltatás. Fonyód központja 3 km távolságra van, így egy vállalkozás az egész évben lakott fonyódiak miatt fenntartható lehet.Szabad strand és vasútállomás a közelben. M7 autópálya Ordacsehi lehajtó 6 km.Műszaki tartalomról röviden. (Amennyiben kérdése van a műszaki tartalommal kapcsolatban, a teljes dokumentáció elérhető)Az épület belső és külső falazata Porotherm tégla falazat, a külső hőszigetelés 15 cm - 20 cm vtg. Kőzetgyapot és EPS lemezrendszer készült.A homlokzati műanyag belül fehér, kívül színes nyílászárók fokozottan hőszigetelő 3 rétegű üvegezéssel, általában bukó-nyíló kialakítással készültek.Elektromos ellátás, gyengeáram- lakáson belül a bejárat közelében fogyasztói és elosztói kapcsolótábla felszerelése kis megszakítókkal, egyfázisú 1*32 A-es becsatlakozás lehetőségével (a teljesítményegyedi igények esetén opcionálisan bővíthető)- a villanyórák a földszinten, egy közös szekrényben kerülnek kiépítésre- konnektorok elhelyezése a Nappali 7db, Étkező 2db, Konyha 6db, Szoba 4db, Fürdő 2db, Közlekedő 1db.Melegvíz ellátás:- A villanybojlerek lakásonként önállóan, a fürdőkben vagy WC-ben nyertek elhelyezéstA lakások fűtését NIBE típusú vagy ezzel műszakilag egyenértékű levegő-víz hőszivattyúk biztosítják, melyek az épület lapostetőjén kerülnek elhelyezésre.A lakásokban nedves rendszerű padlófűtési rendszer kerül kialakításra, illetve fűtésrásegítésre, illetve a nyári hűtésre fan-coil berendezések kerülnek felszerelésre a nappalikban, illetve a szobákban. Hőmennyiségmérés távleolvasási rendszerrel kerül leolvasásra. A nyári üzemben a padlófűtési osztó kizárásra kerül, ilyenkor csak a fan-coilok kapnak hűtött közeget. A fürdőkben 1-1db törölközőszárítós csőradiátor is beépítésre kerül a padlófűtés mellett.Szellőztetés: gépi szellőztetésre a lakások belső terű helyiségeiben van szükség, ezek jellemzően a WC, illetve a fürdő helyiségek. A belső terű helyiségekben HELIOS ELS típusú kürtőbe kötöttventilátorok kerültek beépítésre.Miért válassza Fonyódligetet?Ideális választás minden korosztálynak, akár családoknak, akár fiataloknak egyaránt. Kiváló közlekedési lehetőségek és infrastruktúra. A közelben Fonyódon, Balatonbogláron, Balatonlellén egész éves programok érhetőek el. Nyugodt, biztonságos környezet a Balaton közelében.Tekintse meg új otthonát Fonyódligeten és élvezze a Balaton életstílusát az év minden évszakában!

További adatok

Telekterület: -
Kert mérete: -
Erkély mérete: 5 m2
Felszereltség: -
Parkolás: -
Kilátás: utcai
Egyéb extrák:  
-

Hirdető adatai

Hirdető neve: Otthon Centrum
Kapcsolattartó: Dienes László
Hirdető telefonszáma: +36 70 388 5086
Honlap: -

Üzenetet küldhet a hirdetőnek:
Az Ön neve:
Az Ön e-mail címe:
Üzenet: